Anh chị đang tìm những mẫu nhà 1 trệt 2 lầu tân cổ điển 2026. Thì tham khảo các kiểu nhà mặt tiền đẹp 5m 3 tầng với nhiều kiểu kiến trúc mềm mại sau. Rất đáng để chọn nếu như có tài chính xây trọn gói trên dưới khoảng 2 tỷ đổ lại. Thích kiểu nào anh chị liên hệ KTS để tư vấn thêm
Bản vẽ nhà phố 3 tầng đẹp mặt tiền 5m chị Loan
Bản vẽ thiết kế nhà phố 3 tầng 5x17m vẽ xây cho gia đình chị Loan. Tổ ấm khang trang diện tích 85m2 bên trong có 4 phòng ngủ 1 phòng thờ. Phía sau nhà đẹp mặt tiền 5m 1 trệt 2 lầu mái thái này có sân thượng
- Kiến trúc nhà phố ngang 5m 3 tầng có sân thượng
- Diện tích đất : 5x20m thiết kế xây 80m2 tầng 1 là 5x16m tầng 2 trở lên 5x17m có đua ban công
- Phong cách kiến trúc nhà mái thái tân cổ điển 3 tầng
- Chủ đầu tư: Cô Loan
- Chi phí thiết kế xây trọn gói: 1.8 tỷ
- Phụ trách bản vẽ: KTS Phương – Nhà Đẹp Mới

Phối cảnh nhà phố đẹp 3 tầng mặt tiền rộng 5m dài 20m
Gửi anh chị kiểu nhà phố 3 tầng mái thái mặt tiền 5m đẹp có hệ mái dốc trước sau phía ngoài. Còn phía sau thiết kế có sân thượng để năng lượng mặt trời và bồn nước. Lưu ý mẫu thiết kế nhà phố mặt tiền 5m đẹp chừa trước gần 3m. Phía sau chừa lối thoát hiểm. Lưu ý đây là mẫu nhà đẹp thiết kế xây trên đất 5x20m còn anh chị có đất ngang 5m mà chiều sâu dài hơn thì nên chừa sân trước rộng hơn

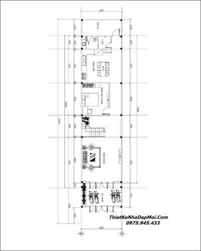
Công năng thiết kế nhà 3 tầng đẹp diện tích 5x20m cô Loan
Tính cả hệ số mái lợp ngối cộng thêm kết cấu móng băng nữa. Thì hồ sơ thiết kế nhà phố 3 tầng mặt tiền 5m là 340m2. Trong đó cấu bố trí bên trong bản vẽ thi công nhà cô Loan theo nhu cầu bao gồm
- Tầng trệt: Sân trước để xe, phòng khách, cầu thang, bếp ăn, 2 vệ sinh, sân sau
- Tầng 2: Thiết kế 2 phòng ngủ 1 phòng tắm vệ sinh, Trên phòng khách để trống
- Tầng 3 : Phòng thờ phía ngoài, phòng ngủ sân thượng sân phơi phía sau

Nếu cần xây nhà 5x20m có gara để ô tô. Thì anh chị xem bản vẽ xây nhà đẹp 5m mặt tiền giả mái thái 3 tầng anh Cung. Tại Đường dẫn này mà chọn thêm.
Tư vấn mặt bằng lầu nhà mặt tiền đẹp 5m 3 tầng 85m2
Bản vẽ thi công nhà 3 tầng 5x17m có thể tuỳ biến ở khu vực tầng lầu được. Nhìn vào bản vẽ dưới đây anh chị có thể bố trí 1 phòng làm việc. Hay phòng ngủ master vợ chồng có wc khép kín. Hay thậm chí là phòng sinh hoạt chung. Ngoài ra nếu cần để trống khu vực này thì trở thành nhà phố thông tầng có tầng lửng 5x17m. Hay còn gọi là nhà đẹp 5m 1 trệt 1 lửng 1 lầu sân thượng phía sau.

Kiểu nhà đẹp 5x20m 3 tầng mặt tiền mái Thái view 2
Kiểu nhà mặt tiền đêp 5m 2 tầng phong cách hiện đại rất phù hợp với khí hậu nhiệt đới nước ta. Thứ 2 với kiểu kiến trúc này anh chị yên tâm vì sẽ không bao giờ lỗi thời theo tháng năm. Lý do diện tường cũng như ngoại thất được kiến trúc sư Phương công ty mình tối ưu kết hợp giữa nét hiện đại không gian mở và kiểu truyền thống nếp nhà Việt có phòng thờ ở tầng 3 trên cùng

Kiểu nhà mặt tiền đẹp 5m 3 tầng mái bằng hiện đại
Đây là phối cảnh nhà ống 3 tầng mặt tiền rộng 5m có gara để xe ô tô phía ngoài. Bản vẽ thiết kế nhà phố đẹp theo kiểu kiến trúc dấu mái tiết kiệm hơn vì không lợp ngói. Hình ảnh nhà 3 tầng phong cách hiện đại rộng 5m dưới cũng phù hợp với nhu cầu xây nhà kinh doanh buôn bán.
- Phía ngoài sân chừa kích thước 4.6m x 5m
- Tiếp đến là khu vực kinh doanh hay bếp khách liên thông và cầu thang, vệ sinh
- Tầng 2 thiết kế ban công và phòng ngủ sinh hoạt chung vệ sinh
- Tầng 3 thiết kế sân thượng hình e lip, phòng thờ và phòng ngủ nếu cần
- Chi phí xây nhà ống 3 tầng tân cổ điển này khoảng 1.6 – 1.7 tỷ trọn gói

Mặt tiền nhà ống 3 tầng kiểu Pháp ngang 5m
Kiểu nhà phố 3 tầng kiểu Pháp mặt tiền cổ điển 5m này có diện tích sàn xây dựng lớn hơn các kiểu trên. Lý do ở trên có thêm tầng tum áp mái đổ sàn bê tông xây tường thu hồi cao gần 2m rồi dán ngói nhẹ Bi_tum. Cho nên đơn giá xây nhà phố cổ điển 3 tầng mặt tiền 5m khoảng 6.2 đến 6.5 triệu/m2 trở lên tức là mức giá thi công nhà phố cao cấp hiện nay

Mẫu nhà mặt tiền đẹp 5m 3 tầng kiểu châu âu
Kiểu nhà mặt phố ngang 5m có mái cong hình bán nguyệt dưới đây được thiết kế xây ở các nước châu âu khá nhiều. Cái khó là chi phí phát sinh thêm vì tốn công đắp chỉ và hoa văn cũng như ghép ván cốp pha để thi công. Tuy nhiên nếu xây nhà phố 3 tầng phong cách hiện đại có tầng áp mái làm sân thượng phía trên như hình ảnh này cũng khoảng tầm 1.6 đến 1.7 tỷ đổ lại mà thôi.

Những bản vẽ xây nhà ốn 3 tầng mái thái mặt tiền 5m đã bàn giao
Quan trọng nhất là đất trong sở anh chị như thế nào? Có full thổ cư chưa và có bắt nuộc phải chừa chỉ giới xây dựng hay không? Ngoài ra mục đích sinh hoạt hay để tầng trệt kinh doanh.. Nhà Đẹp Mới với gần 20 năm đi vào hoạt động. KTS cũng trên 10 đến 15 năm đủ uy tín để xử lý tư vấn công năng cho anh chị. Kể cả kiểu nhà 3 tầng mà mặt tiền giả mái thái. Anh chị xem thêm ở Bài Viết Này nếu cần bản vẽ dưới

5 mẫu nhà phố 3 tầng mái thái mặt tiền 5m đã thiết kế xây xong
Anh chị cần thông tin hay công năng bên trong các kiểu nhà phố mái thái có chi phí xây xong trọn gói thời gian vừa qua. Với khoảng tầm chi phí 1.6 tỷ đến 1.8 tỷ dưới. Thì liên hệ với 5 mẫu dưới đây để gửi và tư vấn kỹ hơn.




Báo giá thiết kế xây nhà đẹp 5m 3 tầng tân cổ điển
Lưu ý giá xây nhà tân cổ điển cao hơn nhà mặt tiền 5m hiện đại. Vì nhà kiểu Pháp có nhiều hoạ tiết trang trí chỉ phào rất tốn công. Vì thế anh chị nên cân nhắc khi lựa chọn xây nhà mái thái 3 tầng tân cổ điển. Hay nhà phố rộng 5x20m 3 tầng kiểu Pháp. Đơn giá công ty mình nhận thiết kế xây trọn gói nhà tân cổ điển là 6 triệu/m2. Nhà phố hiện đại 3 tầng mặt tiền 5m thì 5.8 triệu/m2. Anh chị tham khảo ở tại đây nếu cần xây nhà 1 trệt 2 lầu sân thượng bên phía ngoài anh Hùng đã bàn giao như hình ảnh này

Trên đây là những kiểu nhà phố 3 tầng có mặt tiền đẹp chiều ngang khoảng 4.5m – 5m hay 5.5m đều thiết kế xây được. Bổ sung để anh chị em. các cô chú và các bạn tham khảo mà chọn kiểu. Cũng như có dự định sắp tới cần kiến trúc sư thiết kế xây nhà theo sở thích. Tài chính ngân sách cần đầu tư. Hãy chụp gửi ngay sơ đồ đất trong giấy sổ để KTS xem nghiên cứu và phác thảo sơ đồ gửi trước nếu ở xa. Còn nếu gần thì qua khảo sát vị thế đất tư vấn chính xác hơn. Liên hệ anh Bản phó GĐ công ty mình số Tel 0975 945 433. Cảm ơn.





































