Dưới đây là bản vẽ thiết kế nhà 1 tầng 2 mặt tiền mái Nhật chú Thái. Hồ sơ kiểu kiến trúc nhà cấp 4 2 mặt tiền kinh doanh bán thuốc Tây. Ngoài ra ở cuối bài viết công ty bổ sung thêm các bản vẽ nhà trệt có hai mặt tiền đẹp khác.
Nhu cầu xây nhà cấp 4 2 mặt tiền kinh doanh thuốc Tây
Chú Thái là một sỹ quan bộ đội Quân Y, vừa được nhà nước cho nghỉ hưu theo NĐ/178. Sau khi tham khảo những mẫu nhà cấp 4 đẹp kiểu có mặt tiền bị vát góc hình thang xéo. Chú liên hệ KTS công ty Thiết Kế Nhà Đẹp Mới chia sẽ như cầu xây nhà 1 tầng 2 mặt tiền có sân để xe và công năng như sau
- Kiến trúc nhà cấp 4 mái Nhật lợp ngói vừa ở kết hợp kinh doanh buôn bán
- Cần có 3 phòng ngủ, phòng khách, phòng thờ, 1 phòng tắm vệ sinh chung, phòng bếp ăn
- Trong đó có 1 phòng ngủ master cho vợ chồng chú Thái
- Có phương án cầu thang chờ sau này có thể cải tạo lên thành nhà đẹp 2 tầng sân thượng
- Khéo léo làm sao thiết kế có sân để được ô tô
- Nhiều cửa sổ thiết kế thông thoáng hiện đại không cầu kỳ


KTS tư vấn thiết kế nhà đẹp 1 tầng 2 mặt tiền kinh doanh
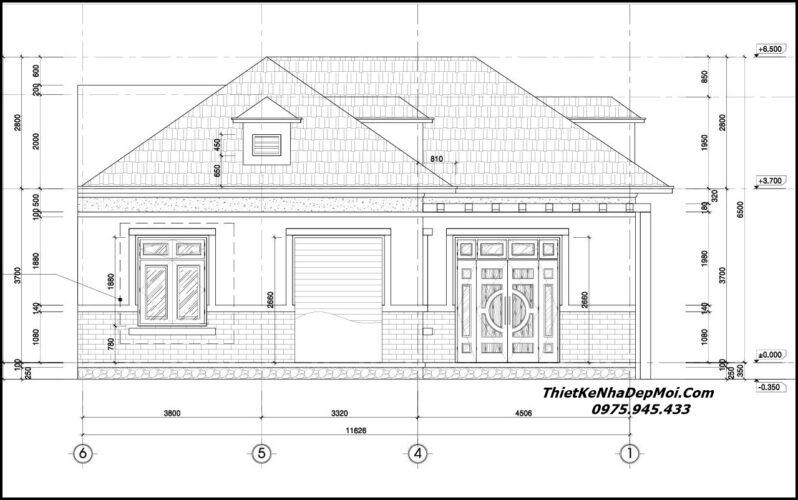
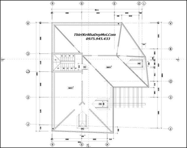
Sau khi nhận được yêu cầu tư vấn xây nhà mái Nhật 1 tầng có 2 mặt tiền. Cũng như bản vẽ sơ đồ thửa đất hình thang bị vát góc phía sau. Diện tích rộng tổng thể là 162m2 gần như là 3 mặt tiền xéo. Hướng chính nhà cấp 4 cũ đã xuống cấp là hướng Nam. Một bên trục thẳng ra sau bên trái là đất của nhà hàng xóm. Con đường bên phải là hướng Đông. Nắm bắt nhu cầu sinh hoạt của gia đình thượng Tá quân y sinh Canh Tý KTS thiết kế như sau
- Tuổi Canh Tý 1960 xây nhà hướng Nam phù hợp với tuổi
- Kiến trúc thiết kế theo kiểu nhà trệ chữ L 2 mặt tiền mái Nhật lợp ngói
- Vị trí bếp nấu đặt ở Tây Nam theo nguyên tắc “Toạ Hung hướng Cát”
- Phòng thờ nhìn về hướng Nam cung Sinh Khí
- Diện tích quầy thuốc kinh doanh thiết kế rộng vừa đủ 17m2.


Luận giải cho bản vẽ nhà cấp 4 2 mặt tiền phong thuỷ
Chú Thái sinh năm 1960 là mệnh Thổ – Đất tò vò – Bích thượng thổ. Kiến trúc thiết kế nhà trệt 2 mặt tiền mái ngói thiên về sẫm màu. Mẫu nhà cấp 4 2 mặt tiền kinh doanh bán thuốc Tây phối màu sơn là Nâu đỏ và xám trắng. Hành hoả tương sinh, nhà thiết kế của cung Thiên Y hướng Nam rất tốt cho sức khoẻ tuổi già. Lưu ý khi mua sắm nội thất bên trong không gian nhà cho tuổi Canh Tý. Anh chị cũng lưu ý chọn theo nguyên tắc ngũ hành: Tuổi Tý thuộc hành Thuỷ – Canh thì thuộc hành Kim = Thuỷ sinh Kim mà gia chủ 1960 Canh Tý là thuộc mệnh Thổ vậy là =>> Thổ sinh Kim.


Chi phí xây nhà đẹp 1 tầng 2 mặt tiền mái Nhật năm 2025
Nhà cấp 4 mái Nhật hay còn gọi là nhà trệt mái Lùn bởi vì có chỉ số kết cấu mái thấp hơn so với nhà 1 tầng mái thái chữ A. Năm 2025 thời điểm hiện tại giá vật liệu xây dựng nhà ở có tăng nhẹ so với năm ngoái. Cụ thể nếu xây nhà cấp 4 đẹp kiểu hai mặt tiền lợp ngói mức tốt thì khoảng 6 triệu/m2 bởi vì
- Đồ nội thất cửa gỗ tốn kém cao hơn đồ nhôm kính Xingfa
- Có cửa cuốn tự động an ninh chắc chắn như hình 3d phát sinh thêm
- Chi phí xây nhà cấp 4 đẹp 2 mặt tiền sẽ cao hơn kiểu nhà 1 mặt tiền
- Nhà cấp 4 mái ngói giá sẽ phát sinh thêm so với lợp tôn
- Kết cấu nhà 1 tầng có cầu thang lên tầng 2 nên thi công móng băng chắc chắn hơn
- Có đổ sàn bê tông áp mái cột có sắt chờ lên tầng về sau nên tốn kém hơn


Làm rõ về giá xây dựng nhà đẹp 2 mặt tiền cấp 4 mái ngói
Nếu như chi phí xây dựng nhà cấp 4 2 mặt tiền kinh doanh này là 6.5 triệu/m2. Nghĩa là hình thức xây nhà kiểu chìa khoá trao tay. Còn nếu anh chị cần xây nhà cấp 4 chữ L 2 mặt tiền đẹp mà chỉ phần thô và nhân công hoàn thiện thôi. Thì công ty kiến trúc xây dựng Nhà Đẹp Mới mình nhận chỉ 4 triệu/m2. Nghĩa là phần khung chưa tính nội thất như cầu thang, ốp lát, sơn nội ngoại thất, đèn, cáp quang, thiết bị vệ sinh..


Lý do chọn nhà cấp 4 2 mặt tiền kinh doanh mái Nhật
Nhà mái Nhật cấp 4 đẹp hiện rất được ưa chuộng tại Việt Nam. Bởi có rất nhiều lý do khác nhau ví dụ như kiến trúc không bao giờ lỗi thời. Nhà cấp 4 trệt mái lùn chi phí không phát sinh thêm so với nhà mái thái 2 mặt tiền kinh doanh. Thứ 3 phù hợp với thời tiết khắc nghiệt biến đổi khí hậu nước ta.


Tư vấn thiết kế nhà cấp 4 vừa ở kết hợp kinh doanh 2 mặt tiền
Tổng diện tích đất của nhà chú Thái thượng tá quân y về hưu là 162m2. Trong đó diện tích sàn sử dụng xây kích thước là 137m2. Còn lại chừa sân để ô tô và cổng là 25m2. Kiểu nhà 1 tầng mái Nhật vừa ở vừa kết hợp buôn bán kinh doanh thuốc Tây này xây theo phong thuỷ hướng Nam. Còn anh chị đất ra sao khi liên hệ với KTS hãy cho biết thế đất rộng hẹp hướng Nào. Năm sinh, chi phí dự trù.. nhu cầu xây nhà cấp 4 2 mặt tiền buôn bán gì.. cần kho để vật dụng không? Nếu có thể thì chụp sơ đồ đất gửi để KTS lên phác thảo mặt bằng bố trí công năng sơ bộ để quý vị nắm và tư vấn cụ thể hơn. Giá thiết kế KTS công ty vẫn nhận 120 nghìn/m2. Tức hơn 10 năm nay giá vẫn không thay đỗi.
Kết nối thiết kế xây nhà 1 tầng 2 mặt tiền kinh doanh
Trong quá trình thiết kế hồ sơ kỹ thuật thi công. Team ê kíp KTS kỹ sư công ty sẽ vẽ miễn phí cho anh chị như sân vườn tiểu cảnh và cổng tường rào. Làm dự toán chi tiết khối lượng vật tư từng hạng mục, giá cả từng phần để anh chị nắm rõ. Gia đình anh chị tin tưởng giao thi công thì sẽ trả lại tiền thiết kế cho anh chị khi tập kết vật tư xuống móng. Nghĩa là miễn phí 100% hồ sơ thiết kế cho anh chị sau khi chuyển sang giai đoạn 2 là hợp đồng thi công


Những mẫu nhà cấp 4 2 mặt tiền đẹp đã thực hiện
Công ty gửi thêm những hình ảnh đại diện nhà vườn cấp 4 mái thái 2 mặt tiền đẹp. Hay một số bản vẽ thiết kế nhà đẹp 1 tầng mái Nhật xây trên đất 2 mặt tiền. Cũng như nhà trệt 2 mặt tiền kinh doanh mái bằng có sân thượng.. Với các kiểu dáng đa dạng nhiều chức năng khác nhau uy tín thêm để các bạn tham khảo thêm




Làm rõ về mẫu nhà 1 tầng 2 mặt tiền kinh doanh
Lưu ý nếu anh chị có đất 2 mặt tiền trước và sau. Mong muốn xây nhà cấp 4 mái bằng hiện đại kiểu 1 trệt 1 sân thượng. Phương án thiết kế nhà có cầu thang nhà 1 bên như hình. KTS đều có giải pháp hay thiết kế cho anh chị. Ví dụ ý tưởng
- Phía mặt tiền đường chính kinh doanh
- Còn mặt tiền phía sau là nhà ở hình chữ U có sân như hình dưới cũng được


Bản vẽ nhà cấp 4 mặt tiền 5m kinh doanh cho thuê
Bản vẽ xây nhà ống cấp 4 này diện tích xây là 80m2 tức 5x16m. Do nhu cầu xây nhà cấp 4 phía ngoài làm văn phòng công ty kinh doanh. Tiếp theo không gian bếp và bàn ăn cũng như phòng ngủ phía sau. Anh chị xem ở bài viết này nếu cần xây nhà cấp 4 kinh doanh mặt tiền 5m như hình.


Mẫu thiết kế nhà trọ cấp 4 kinh doanh kiểu 1 tầng
Mô hình xây nhà cấp 4 kinh doanh cho thuê hiện rất được quan tâm. Nhất là việc điều khiển từ xa qua camera để kiếm thêm thu nhập. Giống như về hưu rồi nhưng chú Thái vẫn bán thuốc để kiếm thêm thu nhập. Công ty hiện có khoảng hơn 20 hồ sơ thiết kế nhà 1 tầng 2 mặt tiền kinh doanh kiểu cấp 4 như hình. Anh chị cần kinh doanh phòng trọ thì tham khảo thêm Ở Bài Viết Này công ty mình vừa thiết kế xây trọn gói cho chị Bé anh Thanh.


Bản vẽ thiết kế nhà nghỉ cấp 4 2 tầng đơn giản kinh doanh
Hình ảnh dưới đây là mẫu nhà nghỉ cấp 4 kinh doanh cho thuê phòng ngủ chị Hà. Căn nhà Motel Mini được thiết kế xây 1 bên đất. Anh chị cũng có thể hình dung nó như đất 2 mặt tiền. Vì bên phải là hành lang dãi phân cách để trống. Mẫu nhà nghỉ cấp 4 2 tầng xây hết hơn 1.5 tỷ. Thiết kế có 7 phòng cho thuê. Muốn kinh doanh nhà nghỉ cấp 4 bình dân tiêu chuẩn 2 sao hay 3 sao. anh chị xem ở tại đây thêm nếu muốn về hưu kinh doanh phòng nghỉ hay buôn bán..


Những mẫu nhà cấp 4 2 mặt tiền đẹp đã thiết kế xây
Bổ sung thêm những mẫu nhà cấp 4 2 mặt tiền đẹp mà công ty đã xây dựng trong những năm qua. Lưu ý đây là kiểu dáng thôi nhé. Còn anh chị cần kinh doanh thì phác thảo sơ đồ và tư vấn vị trí kinh doanh buôn bán, kho bãi, gara, cửa cuốn thêm. Anh chị thấy đất rộng 2 mặt tiền hay đất bị vát góc theo mẫu nào thì liên hệ. KTS công ty mình gửi bản vẽ bên trong cho tham khảo






Anh chị cần thiết kế xây nhà trệt kinh doanh kiểu 2 mặt tiền cấp 4. Thì liên hệ và chụp hình sổ có sơ đồ đất để KTS nghiên cứu tư vấn phác thảo trước mà chuẩn bị. Số anh Trương Khắc Bản 0975 945 433 phó GĐ công ty Nhà Đẹp Mới mình. Trân trọng.!





































