Mẫu nhà cấp 4 1 phòng ngủ 1 phòng khách thờ bếp vệ sinh hoàn chỉnh diện tích 75m2. Công ty xây cho vợ chồng già neo đơn vừa nghỉ hưu theo NĐ/178 2025-2026. Kiểu nhà trệt 3 gian 1 tầng ở quê nông thôn đang xây dang dỡ.
Ảnh nhà cấp 4 mái ngói 1 phòng ngủ 1 phòng khách
Bản vẽ xây nhà vườn xinh 75m2 lợp ngói đơn giản mà đẹp. Bản vẽ thi công kiến trúc cấp 4 kiểu 1 tầng tân cổ điển phong cách Địa Trung Hải ở quê. Xung quanh đất rộng thoáng 4 phía hanh thông. Chiều ngang thiết kế rộng 10m bề sâu ra sau 9m cả hiên sảnh trước
- Dự án thiết kế xây nhà cấp 4 nhỏ đẹp trọn gói
- Chủ đầu tư: Anh Cảnh chị Liên
- Địa điểm: Phường Điện Bàn Đông – TP Đà Nẵng
- Phụ trách chính: Kiến trúc sư Lê Xuân Đức – Chi nhánh Văn phòng Đà Nẵng
- Năm thực hiện: Tháng 8 năm 2025
- Thời gian thi công trọn gói cả nội thất: 2.5 tháng

Nhu cầu xây nhà cấp 4 1 phòng ngủ 1 phòng thờ tại Điện Bàn Đông
Điện Bàn Đông là phường vừa sau sát nhập vẫn còn nhiều khó khăn. Đây là phường sát biển nên khi hậu rất mát mẻ. Cơ sở hạ tầng giao thông rất thuận tiện đi kèm với các dịch vu du lịch biển, siêu thị.. Được rất nhiều doanh nhân bất động sản quan tâm. Việc chọn xây nhà cấp 4 nhỏ đẹp 1 phòng ngủ 1 phòng khách ở quê nơi mình “sinh ra để trở về” cũng là mong muốn của chị Liên Anh Cảnh.

Báo giá xây nhà cấp 4 đẹp tại Đà Nẵng 2025
Một bộ hồ sơ thiết kế kỹ thuật thi công nhà cấp 4 1 phòng ngủ 1 phòng khách như anh Cảnh là 13 triệu/HS. Trọn bộ hồ sơ thiết kế để gia chủ dễ định hình được công năng và ngôi nhà tương lai gần. Sau khi Kiến trúc sư công ty thuyết minh làm rõ và tư vấn chi tiết cụ thể. Nếu gia chủ đồng ý giao cho công ty chi nhánh văn phòng Đà Nẵng mình thi công trọn gói thì sẽ miễn phí thiết kế 100% hồ sơ cho anh chị. Còn nếu anh chị tự mua vật tư xây thì công ty sẽ giám sát cho anh chị.

Giá xây nhà đẹp 1 tầng cấp 4 mái ngói tại Đà Nẵng
Đơn giá xây dựng nhà trọn gói chi nhánh công ty kiến trúc xây dựng tại Đà Nẵng nhận mức tốt là 5.8-6 triệu/m2. Còn riêng phần nhân công hoàn thiện và vật tư xây dựng phần thô công ty mình nhận giá chỉ 3.9 triệu/m2. Kiểu nhà cấp 4 1 phòng ngủ 1 phòng khách thiết kế xung quanh có nhiều cửa sổ thoáng.

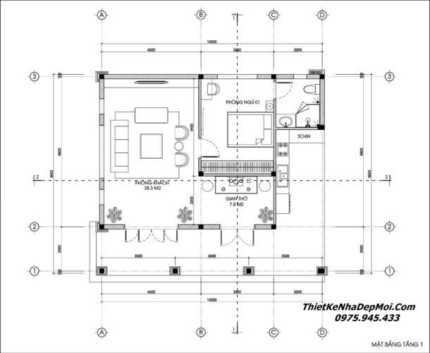
Bản vẽ nhà cấp 4 1 phòng ngủ 1 phòng khách phòng thờ 80m2
Bản vẽ nhà cấp 4 nhỏ đẹp 80m2 phủ bì này thiết kế ưu tiên có phòng khách rộnr gần 30m2. Theo nhu cầu thiết kế có 1 phòng ngủ master rộng rãi cho vợ chồng chú có wc khép kín. Phòng bếp và bàn ăn thiết kế phía ngoài cho thoáng mát view nhìn ra vườn. Phòng thờ mẫu thiết kế nhà trệt cấp 4 1 phòng ngủ đẹp view nhìn về cung sinh khí hướng Đông Nam.

Mẫu nhà cấp 4 1 phòng ngủ 1 phòng khách 50m2
Anh chị xem ở bài viết này nếu cần xây nhà 1 phòng ngủ diện tích nhỏ đẹp rộng 5m dài 10m. Có hình ảnh thiết kế nội thất bên trong như 1 căn hộ cao cấp 1 phòng ngủ. Và bản vẽ xây nhà cấp 4 có gác lửng 5x10m tầng dưới dành cho phòng tiếp khách bếp còn ở trên là phòng ngủ và phòng thờ. Nói chung tuỳ theo diện tích đất. Anh chị gửi sơ đồ đất cho KTS công ty mình nghiên cứu để phác thảo tư vấn thêm

Phối cảnh mẫu nhà cấp 4 1 phòng ngủ 1 phòng thờ anh Cảnh
Dưới đây là 1 góc nhìn khác bản vẽ nhà cấp 4 mái thái 80m2 đang thi công trọn gói trên. Anh chị cần xây nhà vườn nghỉ dưỡng báo hiếu cho bố mẹ già ở thôn quê. Cần bản vẽ thiết kế xây cho khoa học thì liên hệ công ty mình.

Những kiểu nhà cấp 4 1 phòng ngủ 1 phòng khách khác
Trên Website công ty phần lớn là các bản vẽ nhà cấp 4 đẹp có 2 phòng ngủ trở lên. Dẫu biết rằng ít ai có nhu cầu xây nhà cấp 4 mà có 1 phòng ngủ. Quan trọng nhất là nhu cầu sử dụng cho người già. Hay trường hợp xây nhà diện tích nhỏ khoảng tầm 400 đến 500 triệu để cho thuê. Ví dụ như bản vẽ nhà cấp 4 mặt tiền 5m 1 phòng ngủ mái bằng này

Bản vẽ thiết kế nhà trệt diện tích nhỏ có tầng lửng
Dưới đây là mẫu nhà gác lửng nhỏ đẹp 50m2 thiết kế có phòng khách liền kề bếp. Cho mẹ con chị Vân tại Quảng Nam cũng mới đây. Anh chị cần xem đầy đủ kích thước bản vẽ hay phối cảnh cũng như tư vấn chi tiết vật tư chi phí xây nhà. Thì xem ở đường dẫn này mà chọn thêm nếu cần bản vẽ thiết kế nhà cấp 4 2 phòng ngủ 1 phòng khách như hình

Mẫu nhà cấp 4 kiểu 1 trệt 1 lửng 75m2 em Luyến
Dưới đây là 1 trong những không gian thiết kế nội thất nhà 1 trệt 1 lửng 75m2 tức chiều rộng 5m bề chiều dài sâu ra sau là 15m. Thiết kế cho vợ chồng em Luyến ở Đà Nẵng. Anh chị tham khảo thêm thông tin bản vẽ nhà cấp 4 nhỏ đẹp thêm ở góc nhìn khác tại đây mà chọn thêm


Bài viết này chủ yếu công ty giới thiệu hình ảnh thực tế công trình xây nhà trọn gói giá rẽ cho anh chị Cảnh Liên tại phướng Điện Bàn Đông TP Đà Nẵng. Nếu anh chị cần thiết kế xây nhà trọn gói hay cải tạo sữa chữa nhà cấp 4 cũ thành mới khu vực này. Liên hệ Kiến trúc sư công ty để đến tận nơi khảo sát tư vấn xây nhà khoa học kết cấu bền vững chắc chắn. Bởi miền Trung hay chịu bão lũ thường xuyên. Trân trọng cảm ơn.!






































