Anh chị đang tìm mẫu nhà vườn kiểu châu âu diện tích khoảng 350m2 đến 400m2 phủ bì. Thì bản vẽ biệt thự 1 tầng 4 phòng ngủ về ngang rộng 25m bề sâu phủ bì khoảng 16m sau cũng là 1 trong những kiểu biệt thự ở quê mái nhật độc và lạ cho năm 2026 tới
Trục đứng bản vẽ biệt thự 1 tầng 4 phòng ngủ
Mẫu biệt thự 1 tầng kiểu châu âu thiết kế theo kiến trúc mái Nhật. Mặt tiền rộng 25m tỷ lệ đăng đối đặc biệt có phào chỉ và ống khói. Đây là 1 trong những kiến trúc biệt thự cấp 4 nằm ngang có phù điêu đẹp. Diện tích thiết kế bề sâu ra sau 13,5m chưa tính sảnh. Nếu tính thêm sảnh trước thì thêm khoảng gần 3m nữa.


Không gian thiết kế biệt thự vườn 1 tầng mái ngói
Diện tích sử dụng bên trong nhà biệt thự 1 tầng mái ngói này là gần 350m2. Trong đó KTS thiết kế gồm
- Phòng khách rộng 40m2 bên phải phía ngoài
- Có sảnh đệm trung tâm từ cửa chính đi vào
- Phía bên trái là phòng ăn view nhìn ra hướng mặt tiền
- 3 ngủ master đều có wc khép kín.
- Có 1 phòng wc chung cho cả tầng ở trong nhà
- Một phòng ngủ thường


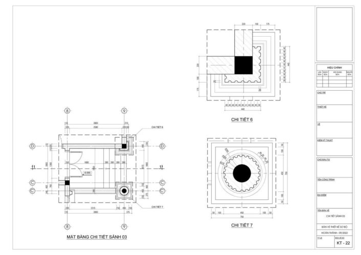
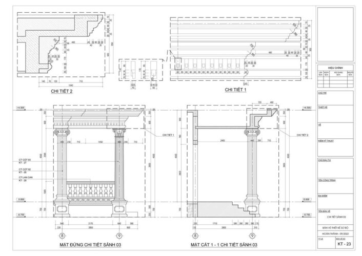
Bản vẽ thi công biệt thự mái Nhật 1 tầng 4 phòng ngủ
Lưu ý nếu trường hợp anh chị cần phòng thờ gia tiên thì có thể kết hợp ở khu vực phòng khách. Bằng cách đặt 1 tủ gỗ vì phòng khách diện tích thiết kế rộng 40m2


Ngoại thất bản vẽ biệt thự 1 tầng 4 phòng ngủ 350m2
Bản vẽ biệt thự nhà vườn kiểu châu âu 4 phòng ngủ có ngoại thất sơn màu trắng sữa. Phía ngoài KTS trau chuốt có các ô cửa sổ kính hình bán nguyệt bằng 1 nữa nhà chòi lục giác. Đậc biệt phía trên mái biệt thự có sân thượng và thiết kế mái vòm sáng tạo. hai bên có 2 ống khói kiểu cách điệu phương Tây


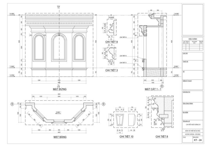
Bản vẽ chi tiết biệt thự 1 tầng đẹp mái Nhật 4 phòng ngủ
Chi phí thi công bản vẽ biệt thự mái Nhật 1 tầng 4 phòng ngủ chìa khoá trao tay biệt thự tân cổ điển khoảng 9.3 triệu/m2. Tính cả nội thất, như vậy nếu công ty mình xây nhà trọn gói như hình trên khoảng 3.5 tỷ. Nghĩa là
- 350m2 x 9.3 triệu/m2 = 3 tỷ 2 trăm 55 triệu
- Chi phí nhân công xây dựng: 1.8 triệu/m2 trọn gói tính theo giọt nước
- Như vậy khoảng 720 triệu tiền nhân công


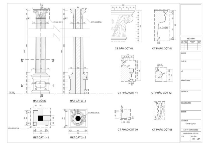
Bản vẽ kỹ thuật xây biệt thự 1 tầng 4 phòng ngủ
Thời gian bàn giao từ khi bắt đầu tập kết vật tư lán trại cho đến khi bàn giao khoảng 4 tháng. Dưới đây là những bản vẽ chi tiết thi thiết kế thi công biệt thự đẹp 1 tầng 4 phòng ngủ này.












KST thiết kế xây biệt thự sân vườn 1 tầng 4 phòng ngủ
Lưu ý tuỳ theo diện tích đất rộng hẹp và năm sinh tuổi tác. Cũng như chi phí đầu tư xây biệt thự sân vườn ở quê. Nếu có tài chính khoảng 2.5 tỷ thì anh chị xem ở BÀI VIẾT NÀY nếu xây biệt thự ở quê 4 phòng ngủ kích thước khoảng dưới 200m2 sử dụng sinh hoạt bên trong. Gửi thêm anh chị 1 kiểu biệt thự mái Nhật 300m2 4 phòng ngủ khác đang thi công khoảng 3 tỷ trọn gói


Giá thiết kế biệt thự tân cổ điển 4 phòng ngủ 1 tầng mới
Dưới đây là phối cảnh biệt thự 1 tầng 300m2 có hình ảnh thi công so với thực tế hình trên. Để anh chị tham khảo thêm. Chi phí thiết kế biệt thự tân cổ điển 1 tầng mái Nhật này là 120 nghìn/m2. Nếu anh chị có người quen thi công thì liên hệ để KTS mình thiết kế


Mẫu thiết kế biệt thự kiến trúc Pháp châu âu 1 tầng 4 phòng ngủ
Anh chị cần xây nhà biệt thự 1 tầng tân cổ điển khoảng 250m2 4 phòng ngủ kiểu Pháp. Thì công ty có kiến trúc biệt thự 5 gian này. Anh chị xem thêm thông tin ở đây mà chọn cho năm 2026 nếu ưa thích bản vẽ nhà vườn 1 tầng 4 phòng ngủ 1 phòng thờ ở quê


Bản vẽ biệt thự 1 tầng 4 phòng ngủ có gara anh Hùng
Bổ sung thêm anh chị mẫu biệt thự 1 tầng đẹp ở nông thôn 4 phòng ngủ 1 phòng thờ. Diện tích cũng khoảng tầm 350m2. Đây là bản vẽ nhà có phòng bếp và bàn ăn thiết kế riêng 1 bên. Anh chị xem đầy đủ hơn ở BÀI VIẾT NÀY giúp công ty mình. Còn đây là bản vẽ thiết kế công năng và phối cảnh




Nói chung gần 20 năm qua công ty mình có rất nhiều kiểu nhà tân cổ điển châu âu mái Nhật. Cũng như nhà mái bằng mái thái hay các Mẫu nhà biệt thự 1 tầng sân vườn đẹp có 4 đến 5 phòng ngủ. Anh chị cần thiết kế và tho công thì liên hệ công ty.







































