Nhà Đẹp Mới trân trọng gửi đến anh chị mẫu khách sạn tân cổ điển đẹp anh Quang. Đây là hồ sơ thiết kế khách sạn 4 tầng hiện đang thi công. Mời anh chị tham khảo thông tin chi tiết


Thông tin dự án thiết kế khách sạn 4 tầng anh Quang
Dưới đây là hiện trạng tổng thể mặt bằng vị trí đất cần thiết kế và xin phép xây dựng khách sạn 4 tầng theo tiêu chuẩn 5 sao này. Trong đó theo quy hoạch của khu đô thị chỉ được phép xây dựng khách sạn chiều cao không quá 21m.


Tổng quan thiết kế khách sạn 5 sao tân cổ điển bốn tầng
Tổng thể diện tích đất chủ đầu tư gửi cho rộng 714,8m2. Đất hơi xéo theo vị trí xây dựng T58 của tờ bản đồ là 34. Mặt tiền đường rộng 14m lọt lòng còn vỉa hè là 5m phía ngoài.


Diện tích thiết kế xây dựng khách sạn cổ điển Pháp 4 tầng
Bản vẽ thi công khách sạn 5 sao tối ưu trên đất rộng xung quanh còn đất. Nên giải pháp thiết kế có 3 lối thoát hiểm chính đó là trước, bên hông và phía sau. Tổng diện tích sàn xây dựng là 2.170m2. Trong đó:
- Diện tích xây dựng tầng trệt là 479,25m2
- Diện tích tầng lầu tức tầng 2 có ban công thêm nên rộng 469,55m2
- Tầng 3 + 4 chính xác diện tích sàn xây dựng là 483.27m2
- Diện tích tầng tum áp mái trên cùng là 227,96m2.


Tổng quan kiến trúc khách sạn cổ điển đẹp 5 sao 4 tầng
Phần xây dựng thô và nhân công hoàn thiện khách sạn cổ điển 4 tầng đẹp như bài viết này là 4.5 triệu/m2. Giá thi công hoàn thiện xây dựng khách sạn 4 tầng 1 tum khoảng 9 triệu/m2 đến 10m triệu/m2.
- Dự án thiết kế khách sạn kiến trúc Pháp 4 tầng 1 tum năm 2026
- Phong cách kiến trúc khách sạn tân cổ điển 5 sao
- Chủ đầu tư: Đoàn Văn Quang
- Tổng chi phí đầu tư: 21,5 tỷ đến 22 tỷ
- Phụ trách hồ sơ: KTS Thanh
- Năm thực hiện: 2026 – 2027


Bản vẽ thi công khách sạn kiểu Pháp 4 tầng 5 sao tại Việt Nam
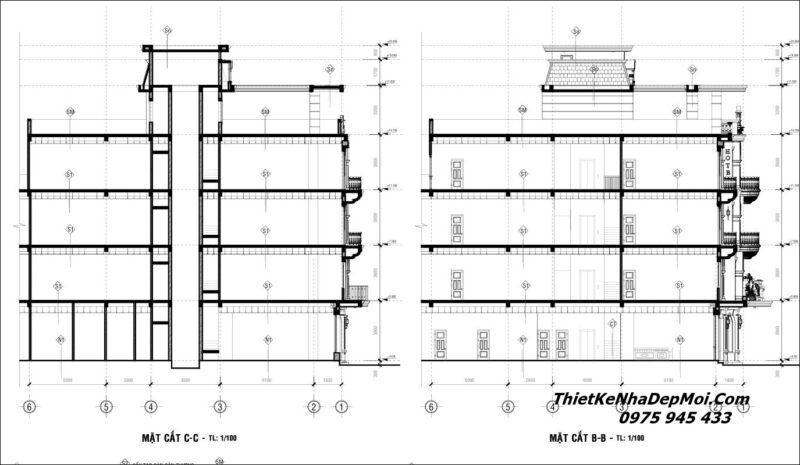
Dưới đây là bản vẽ mặt đứng chi tiết kỹ thuật thi công khách sạn 4 tầng đẹp mặt tiền 12m của dự án này. Công ty bổ sung thêm để quý vị tham khảo cho tin cậy. Khi tìm hiểu kiến trúc sư công ty chuyên thiết kế khách sạn uy tín hàng đầu Việt Nam.


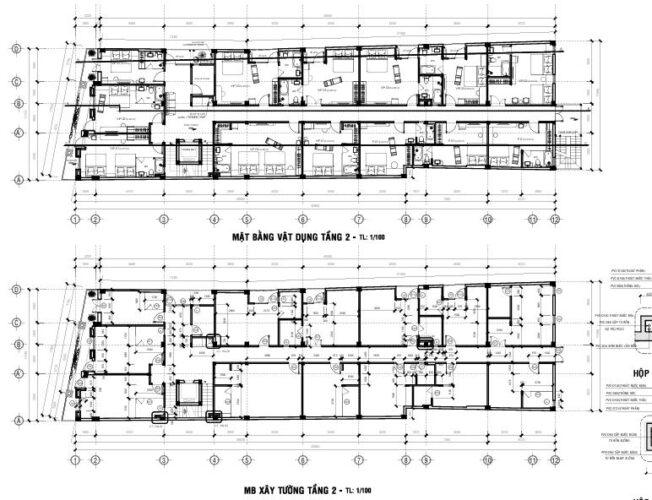
Mặt bằng thiết kế khách sạn 4 tầng 12x40m anh Quang
Mẫu khách sạn 4 tầng đẹp 12x40m của chủ đầu tư anh Đoàn Văn Quang. Nếu thời tiết thuận lợi thì hoàn thiện theo tiến độ hợp đồng khoảng 8 tháng. Dưới đây là mặt bằng khách sạn 12x40m công ty xuất ra từ file cad bản vẽ xin phép xây dựng. Mong chủ đầu tư tìm hiểu sơ đồ thêm






Giá thiết kế khách sạn nhà nghỉ 4 tầng trở lên hiện nay
Một bộ bản vẽ hoàn chỉnh kỹ thuật xây dựng khách sạn theo tiêu chuẩn 3 sao đến 5 sao đủ. Hiện nay khoảng trên dưới 100 triệu trở lên. Còn nếu bản vẽ thiết kế nghỉ hay khách sạn bình dân mini tiêu chuẩn 2 đến 3 sao. Thì hiện nay rơi vào khoảng trên dưới 50 triệu đến 60 triệu. Trong đó bao gồm
- Chi phí đi lại gặp gỡ tư vấn kỹ hợp đồng thiết kế
- Bộ bản vẽ thiết kế đầy đủ có xin phép, kiến trúc, kết cấu, điện nước
- Chi phí làm việc với công an phòng cháy chữa cháy, tài nguyên môi trường
- Chi phí giám sát bản quyền, pháp lý, mộc dốc của công ty
- Giá thiết kế khách sạn nhà nghỉ 120 nghìn đến 150 nghìn/m2


Thủ tục xin cấp phép xây dựng khách sạn mới nhất quý 2 năm 2026
Thời gian thiết kế nhà nghỉ 4 tầng hay khách sạn khoảng tầm 1 tháng đến 2 tháng nếu cả nội thất. Thời gian hoàn thiện bản vẽ và thủ tục xin cấp phép xây dựng khoảng 15 ngày nếu thuận lợi.


Hồ sơ xin cấp phép xây dựng khách sạn gồm những gì
Bộ hồ sơ này bao gồm nhiều loại giấy tờ khác nhau, đảm bảo tính pháp lý và kỹ thuật cho dự án bao gồm:
- Đơn đề nghị xin cấp giấy phép xây dựng
- Những giấy tờ liên quan đến pháp lý đất đai
- Hồ sơ thiết kế xây dựng khoảng 50 tờ bản vẽ đính kèm
- Giấy chứng nhận đăng ký kinh doanh
- Báo cáo kết quả thẩm tra thiết kế xây dựng
- Giấy chứng nhận thẩm duyệt PCCC của công an
- Giấy chứng nhận đủ năng lực tài chính…


Những bản vẽ thiết kế khách sạn đẹp của công ty
Với kinh ngiệm gần 20 năm chuyên thiết kế và thi công khách sạn mini. Hay những mẫu thiết kế nhà nghỉ 4 tầng đến 8 tầng. Ê kíp kiến trúc sư công ty Nhà Đẹp Mới chắc chắn sẽ đáp ứng cao những chủ đầu tư khó tính nhất. Hiện tại có 9 văn phòng Kiến trúc sư ở trên 34 tỉnh thành phố.


Công ty thiết kế khách sạn hàng đầu tại Việt Nam
Sau khi tiến hành tư vấn giá cả và chi phí dự trừ cho chủ đầu tư. Cũng như lên phương án sơ bộ các tầng nếu thống nhất. Trong vòng 24 tiếng sẽ có 2 đến 3 KTS đến trực tiếp khảo sát đất cũng như tiến hành các thủ tục hợp đồng Pháp lý cần thiết để việc triển khai thuận lợi hơn cho dịch vụ thiết kế thi công khách sạn ngành không khói này. Nếu có đất 2 mặt tiền cần thiết kế khách sạn tân cổ điển 5 đến 6 tầng. Thì truy cập tại đây để tham khảo trước nhà nghỉ 3 sao của công ty mình.


Thủ tục pháp lý tiến hành xây dựng khách sạn nhà nghỉ 4 tầng trở lên
Lưu ý trước khi tiến hành động thổ khởi công xây dựng nhà nghỉ cao tầng hay khách sạn đẹp 4 tầng trở lên. Thì cũng phải mất khoảng thời gian 2 tháng vì còn triển khai chi tiết và làm việc với các bên để thẩm tra, phê duyệt.. Chính vì thế anh chị liên hệ Kiến trúc sư kỹ sư công ty mình trước để tư vấn cho kỹ. Nhất là những hồ sơ thiết kế khách sạn 5 sao đến 6 sao cổ điển VIP như trên




Dịch vụ tư vấn thiết kế nhà nghỉ khách sạn hiện đại 4 tầng uy tín
Vui lòng liên hệ 0975 945 433 anh Trương Khắc Bản quản lý công ty mình. Nếu được thì chụp và gửi trước sơ đồ đất trong giấy chủ quyền để team KTS mình nghiên cứu trước khoảng tiến lùi. Tận dụng vỉa hè hay giải pháp cho lối thoát hiểm và phòng cháy chữa cháy.. có liên quan.. Vui lòng truy cập TẠI BÀI VIẾT NÀY để tham khảo hồ sơ thiết kế khách sạn anh Bình như hình phối cảnh dưới. Rất uy tín và chuyên nghiệp


Trên đây là bản vẽ thiết kế khách sạn 4 tầng 12x40m của anh Quang. Cần thêm thông tin gì thì công ty sẽ cung cấp thêm. Trân trọng cảm ơn.!








































