Bài viết này cập nhật thêm bản vẽ thiết kế nhà 2 tầng 5×12 có 3 phòng ngủ. Trong đó có 2 phương án xây nhà ống đơn giản 60m2 khác nhau. Anh chị thích thì liên hệ để có bản vẽ cho thợ xây
Bản vẽ kiến trúc nhà ống 2 tầng 5x12m mặt tiền phố
Mẫu thiết kế nhà 2 tầng 5x12m 60m2 hiết kế theo kiến trúc nhà ống 2 tầng 1 tum nhỏ. Kiến trúc ở phía trên làm sân thượng và một phòng thờ riêng biệt phía sau là sân phơi kết hợp với bồn chứa cung cấp nước sinh hoạt cho toàn bộ gia đình.

Mô tả cho bản vẽ thi công nhà phố 5x12m 2 tầng anh Dũng
Bản vẽ nhà 1 trệt 1 lầu 5x12m có diện tích xây dựng 60m2. Phù hợp với các kiến trúc nhà lô phố hiện đại mái bằng. Thứ 2 là phù hợp với đất bề sâu hẹp còn chiều ngang 5m hơn. Thứ 3 là năm 2026 thời điểm này nếu xây nhà phố thì chi phí khoảng dưới 1 tỷ đổ lại như hình. Anh chị xem thêm bản vẽ ở gần cuối bài viết file cad bản vẽ này

Những bản vẽ nhà ống 2 tầng 5×12 đẹp mặt tiền
Có rất nhiều kiểu nhà ống 2 tầng có sân thượng 2026. Nếu thích công ty sẽ đến trực tiếp bào giá thiết kế và thi công trọn gói. Đơn giá xây dựng nhà phố 4.5 triệu/m2 phần thô. Còn hoàn thiện hiện nay kiểu chìa khoá trao tay thì khoảng 7 triệu đến 7.5 triệu/m2 tuỳ theo từng khu vực. Dưới đây là bản vẽ thiết kế nhà 1 trệt 2 lầu sân thượng 5×12 có tầng 1 làm gara để xe phía trước phòng khách. KTS đã tối ưu tận dụng nhất có thể dành cho nhà mặt phố 5m của vợ chồng chị Thuỷ

- Bản vẽ thiết kế nhà 5x12m có gara để xe ô tô chung với phòng khách chị Thuỷ
- Thiết kế xây nhà 2 tầng 5x12m 60m2 chi phí thấp
- Mẫu nhà cấp 4 60m2 2 phòng ngủ chữ L mái thái đẹp anh Chiến Lào Cai
- Mẫu nhà ống 1 trệt 1 lầu 5×12 60m2 đẹp
Mẫu thiết kế nhà 2 tầng 5×12 đơn giản có tầng tum sân thượng
Điểm nhấn của mẫu thiết kế nhà 5×12 hiện đại này chính là sử dụng các vật liệu nội thất trẻ trung gam màu thanh thoát năng động cho gia đình gồm 2 vợ chồng và 2 con trong đó biện pháp sáng tạo chính là sử dụng vách ngăn cách điệu nhằm che giấu cầu thang lối lên tầng 2 mang lại không gian sống ấn tượng và tiện nghi cho ngôi nhà.

Bản vẽ thiết kế nhà 2 tầng 5×12 hiện đại 3 phòng ngủ
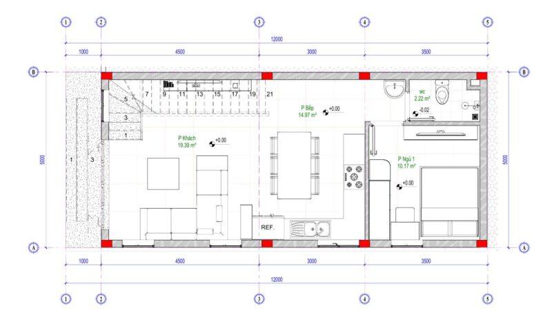
Mẫu thiết kế nhà ống 2 tầng đơn giản trên đổ bằng có 1 tum nhỏ 30m2 tổng thể là 60m2 này ở tầng trệt thiết kế dành cho không gian sinh hoạt gia đình bao gồm phòng khách và phòng bếp ăn cùng 1 phòng vệ sinh chung đặt cạnh cầu thang tối ưu thêm không gian diện tích. Mặt bằng nhà phố 2 tầng hiện đại 5×12 này bố trí sơ bộ như sau

Công năng của bản vẽ nhà ống 5x12m 2 tầng 60m2
Tầng 2 mẫu nhà phố đẹp 2 tầng 5×12 hiện đại thiết kế 3 phòng ngủ. Trong đó phòng ngủ đôi vợ chồng anh Hậu và chị Lan thiết kế phía sau cùng. Còn lại 2 phòng ngủ đơn cho 2 con phía trước. Trong đó phòng ngủ cho con gái thiết kế rộng hơn. Còn nếu cần mặt bằng nhà phố 5x12m 2 tầng có 1 phòng ngủ ở tầng trệt thì có bản vẽ này

Mặt bằng nhà phố 5x12m 2 phòng ngủ 1 phòng thờ ở tầng 2
Phía trước mẫu thiết kế nhà đẹp 2 tầng 60m2 này có ban công khung chắn bằng thép sơn trắng không gỉ. Thiết kế phía ngoài tầng 2 phía dưới cửa sổ thiết kế thêm bồn hoa và thảm thực vật cây xanh. Nhằm tạo cho không gian thân thiện với thiên nhiên và góc view mặt tiền hài hòa hơn. Đây là bản vẽ nhà 2 tầng 5x12m 3 phòng ngủ 1 phòng thờ anh Dũng

Nhận xét về mẫu thiết kế nhà 2 tầng 5×12 đơn giản đẹp
Mặt tường ngoài tầng trệt mẫu thiết kế nhà ống đẹp 2 tầng mặt tiền 5m này ốp đá granite màu xanh lam cửa chính làm bằng khung nhôm mạ kẽm kính window giúp lấy sáng cho ngôi nhà. Cốt sàn tầng trệt cao 3,8m trên tầng 2 mẫu thiết kế nhà phố 2 tầng 5×12 cao 3,6m so với những mẫu nhà ống 3 4 tầng mặt tiền 4 5m khác thì mẫu nhà đẹp 2 tầng 1 tum này tương đối cao ráo thoáng mát tiện ích cho gia đình 4 người anh Hậu.

Bản vẽ thiết kế nhà 2 tầng 5x12m 3 phòng ngủ có sẵn
Mẫu thiết kế nhà đẹp 2 tầng 60m2 mặt phố 5m này có kinh phí thiết kế thi công trọn gói 850 triệu trong đó anh Hậu mong muốn phía trên mái bằng có thêm 1 sân thượng và có 1 tum nho nhỏ đơn giản làm phòng thờ riêng còn phía sau là sân phơi. Anh chị cần xây nhà ống 2 tầng hiện đại 5x12m 3 phòng ngủ 1 phòng thờ. Thì xem bản vẽ nhà anh Dũng như hình dưới đây. Bằng cách NHẤP VÀO ĐÂY tham khảo trước cần bản vẽ có sẵn này thì liên hệ để thi công

Bản vẽ mặt cắt nhà 2 tầng 5×12 3 phòng ngủ anh Dũng
Xem thêm nếu anh chị ngồi máy tính để xem những kiểu nhà cao tầng diện tích 5x12m. Có kiến trúc mặt tiền phong cách tân cổ điển và nhà 3 tầng hiện đại khác
- Mẫu nhà 3 tầng mặt tiền phố 5m hiện đại anh Phiếu ở Hải Dương
- Mẫu nhà ống kiểu pháp đẹp 5 tầng 5×12 một mặt tiền đẹp chị Ngọc Đại La
- Thiết kế nhà 60m2 3 tầng đẹp có thêm tầng tum hiện đại 1.4 tỷ

Gợi 1 một số không gian nội thất nhà ống 5x12m 2 tầng
Mẫu thiết kế nhà phố 2 tầng 5×12 ở ban công và sân thượng phía trước có khung thép che chắn kết hợp với các đà ngang và lam nâu. Thiết kế nội thất bên trong không gian khá gọn gàng , cả 2 tầng có 2 phòng tắm vệ sinh chung tầng cầu thang 21 bậc lối lên tầng 2 cách điệu nằm giữa 2 vách ngăn giấu đi. Trang trí thêm mái rèm che và các bức tranh.



- Tham khảo thêm 1000 mẫu thiết kế nội thất nhà ống đẹp khác của công ty NHÀ ĐẸP MỚI
- Những kiểu kiến trúc nhà ống đẹp mặt tiền khác của công ty
Thông điệp xây nhà ống 2 tầng 3 phòng ngủ 5×12 dưới 1 tỷ
Trên đây là cách tư vấn xây nhà ống 2 tầng hiện đại 60m2 cho những gia đình trẻ ở các thành phố diện tích nhỏ mặt tiền 5m với sở thích không gian mở thoáng mát. Hi vọng với kiểu thiết kế nhà 2 tầng 5×12 đẹp này quý vị có thêm phương án để xây nhà cho mình tiết kiệm và phù hợp với sở thích của mình.

Những kiểu nhà đẹp diện tích 5x12m 2 tầng
Mẫu thiết kế nhà đẹp 2 tầng 60m2 phong cách hiện đại trên đây. Rất thích hợp với gia đình 2 thế hệ cần 3 phòng ngủ 1 phòng thờ. Kinh phí cũng khoảng tầm 900 triệu đến dưới 1 tỷ không quá cao. So với mặt bằng và giá cả thi công xây dựng tăng cao 2026 hiện nay tại Việt Nam. Hi vọng có thêm phương án nhà phố đẹp 2 tầng 5×12 này để quý vị tham khảo xây nhà.

Mẫu thiết kế nhà 2 tầng mái Thái 5x12m chị Chính
Anh chị cần tìm KTS tư vấn thiết kế nhà đẹp diện tích nhỏ cao 1 trệt 2 lầu 1 sân thượng 60m2. Hay những kiểu nhà mặt tiền 5m 2 tầng 1 tum diện tích 5x12m.

Hãy vui lòng liên hệ 0975 945 433 để lên phương án bản vẽ xin phép xây dựng và thiết kế mới chuẩn bị. Số của anh Trương Khắc Bản uy tín gần 20 năm qua vẫn chưa thay đổi của công ty. Vừa để gửi thêm những ý tưởng kiến trúc nhà mặt tiền 5m HOT đẹp nhất hiện nay. Cảm ơn.!









































Anh oi e co manh dat rong 5m ×13 e muon xay 2 tag +1 gac xep hai phong ngu voi san truoc khoang bao nhieu tien vay a tu van giup e
Chào em diện tích 5×13 em xây nhà ống mái bằng lợp mái tầng trệt khách và bếp 1 vệ sinh . Tầng lầu 2 phòng ngủ chừa sân trước 3m cho thoáng nhé.
Nguyễn Đức Du
Ý mình muốn xây nhà chữ L trên diện tích 6,7x10m; tầng 1 gồm phòng khách, bếp, cầu thang. Tầng 2 gồm 3 phòng ngủ (01 của bố mẹ, 02 của hai con) và 1 nhà vệ sinh. Tầng tum gồm phòng thờ, phòng giặt đồ, sân thượng. Vì đất mình sát đường nên mình muốn có 1 khoảng sân nhỏ 3x5m (chính là đoạn góc L) để lm chỗ để xe. Mình muốn thiết kế kiểu hiện đại, nóc phòng thờ phòng thay đồ mái bằng. Xin nhờ kts tư vấn giúp: như vậy nếu thi công thô và thi công hoàn thiện thì mức giá là bnhieu ah? Mình đang muốn xây trong năm nay. Cảm ơn ạ. Tôi gửi tin nhắn 2 lần nhưng chưa thấy kts trả lời. Mong quan tâm và tư vấn giúp tôi ah
Nguyễn Đức Du
Ý mình muốn xây nhà chữ L trên diện tích 6,7x10m; tầng 1 gồm phòng khách, bếp, cầu thang. Tầng 2 gồm 3 phòng ngủ (01 của bố mẹ, 02 của hai con) và 1 nhà vệ sinh. Tầng tum gồm phòng thờ, phòng giặt đồ, sân thượng. Vì đất mình sát đường nên mình muốn có 1 khoảng sân nhỏ 3x5m (chính là đoạn góc L) để lm chỗ để xe. Mình muốn thiết kế kiểu hiện đại, nóc phòng thờ phòng thay đồ mái bằng. Xin nhờ kts tư vấn giúp: như vậy nếu thi công thô và thi công hoàn thiện thì mức giá là bnhieu ah? Mình đang muốn xây trong năm nay. Cảm ơn ạ
Cho mình hỏi: diện tích 6,7×10 m , muốn xây nhà 2 tầng chữ L chi phí xây dựng hoàn thiện khoảng bao nhiêu tiền ạ?
76M2 nếu xây nhà 2 tầng khoảng 70m2 x 2 đơn giản mái bằng có giếng trời thì khoảng 750 triệu. Còn nếu xây nhà mái thái lợp ngói đồ nội thất tốt thì khoảng 800 đến 900 nhé bạn
Ý mình muốn xây nhà chữ L trên diện tích 6,7x10m; tầng 1 gồm phòng khách, bếp, cầu thang. Tầng 2 gồm 3 phòng ngủ (01 của bố mẹ, 02 của hai con) và 1 nhà vệ sinh. Tầng tum gồm phòng thờ, phòng giặt đồ, sân thượng. Vì đất mình sát đường nên mình muốn có 1 khoảng sân nhỏ 3x5m (chính là đoạn góc L) để lm chỗ để xe. Mình muốn thiết kế kiểu hiện đại, nóc phòng thờ phòng thay đồ mái bằng. Xin nhờ kts tư vấn giúp: như vậy nếu thi công thô và thi công hoàn thiện thì mức giá là bnhieu ah? Mình đang muốn xây trong năm nay. Cảm ơn ạ
chào kts
tôi muốn xây nhà ống 5,5m. 18,5m
tầng 1 : 1 phòng khách 1 phòng ngu 1 phòng bếp 1 phòng vs
tầng 2 : 1 p thờ 2 p ngủ và 1 p vệ sinh
kinh phí tầm bao nhiêu và bố trí như nào cho hợp lí ạ
Chi phí khoảng trên dưới 1 tỷ anh nhé
Chào kỹ sư: Mình muốn xây dựng nhà ống 1 trệt, 1 lầu mái lợp tol. Diện tích: 4.6m x 15m. Trệt: 1 phòng khách, bếp, 1 WC, 1 phòng ngủ. Tầng: 2 phòng ngủ, 1 WC. Cho mình hỏi chi phí xây dựng bao nhiêu?
Phần thiết kế xây dựng thô hết khoảng 550 triệu anh ơi
dt dat 4,5×15,5 de 2,5 lam san de xe con 4,5×13 minh muon xay 1 tret 1lau lop ton voi 3 phong ngu chi phi bao nhieu a
Chi phí xây dựng phần thô nhà 1 trệt 1 lầu như bạn nói khoảng 550 triệu còn hoàn thiện có cả nội thất sân cổng hàng rào khoảng tầm 900 triệu bạn ạ
Tôi có mảnh đất rộng 7m, dài 20m muốn xây nhà 2 tầng ở nông thôn,nhờ KTS tư vấn
Chào KTS !
Em có miếng đất 5 * 25m (nhưng dự tính xây 5 *16m thôi). Tầng trệt gồm p khách, bếp , phòng ngủ và WC. Tầng 1 gồm phòng thờ, 2 phòng ngủ và 1 WC kèm sân phơi. Kinh phí tầm 650 triệu. Rất mong được tư vấn ạ ! (dự định giữa tháng 6/2018 này sẽ khởi công, nên hơi gấp)
Chào bạn ngọc, rất cám ơn bạn đã gửi đến thông tin xây nhà 2 tầng 5x16m 3 phòng ngủ và thờ khách bếp.. Chi phí xây nhà 2 tầng 80m2 x 2 + mái + móng + cầu thang cửa, bếp, điện nước, nhân công hoàn thiện như trên khoảng 800 triệu mới xây đủ bạn nhé. Phần thô nhà bạn khoảng 3 triệu/m2 tức khoảng hết hơn 550 triệu rồi bạn à. Rất cám ơn bạn đã gửi thông tin.
chào anh cho em hỏi . em muốn xây mẫu như trên chi phí hết khoảng bao nhiêu vậy a, xin cảm ơn anh
Ban ngoc voi gia tien nhu vay neu goi gem van ok.neu ban co nhu cau alo minh tu van them:
tư vấn giúp mình nhé
Xin chào kts .
Tôi dự định xây nhà : 1 mặt tiền hẽm phố , dt đất 24m x 5m . chỉ xd : 5m x 17m: 2 tầng , 1pk, 4pn ,1bếp, 2wc ,mái bằng bê tông , 2 cầu thang.
Tầm 950tr .trọn gói đủ không anh ? tháng 12/ 2018 xây .Sợ thiếu .
Rất cám ơn .
Thời điểm này thị trường vật tư đang xuống nhẹ nhưng sợ thời điểm cuối năm nó lên anh ạ
Tôi muốn xây nhà 2 tầng và có 1 gác lửng làm phòng khách.Nhà mặt tiền 7,5m muốn thiết kế tầng 1 để kinh doanh và bếp phòng ăn, 1 nhà wc dưới cầu thang,tầng 2 thì tk 2 phong ngủ và sân phơi,1wc,KTS có thể tư vấn giúp ạ?thank
Gia đình đang định xây nhà nên nhờ bên Cty tư vấn . Diện tích đất 6×20m , muốn xây 4.5×15 ,triệt ( 1 phòng khách. Bếp. Kho. Tolet và chỗ để xe máy ) tầng 1 ( 3 phòng ngủ , 1 tolet nhà tắm ) sân thượng ( phòng thờ , sân phơi , trồng rau ) kinh phí 650tr . Nhờ bên cty tư vấn giúp ạ
Tôi có mảnh đất 5*20m tôi muốn xây dựng căn nhà với diện tích 5*12 (trừa sân trước 5m hậu sau 3m) tầng trệt 1 phòng khách,1bep, 1 phòng ngủ.tầng 1 phòng thờ 2phongf ngủ.tôi muốn kts tư vấn giúp tôi.
Chào anh. Đất anh nở hậu và yêu cầu 3 phòng ngủ nên xây 5×14 cho thoáng mát trước chừa sân 5m sau 1m hình chữ l kinh phí khoảng 600 triệu xây mái thái cho đẹp anh nhé. Anh liên hệ sớm để gặp trao đổi và tư vấn cụ thể ra tết xây cho khỏi cập rập
Phamhung.nha ban neu xay nhu vaykinh phi du tru se la 600t.neu co nhu cau lien hue minh tu van .
em muốn xây 1 căn nhà 6×12m 1.pk và thờ. 1p.ngủ. 1 bếp. em muốn nhờ kts tư vấn hộ ạ. (nhà nông thôn)
Chào em với diện tích 6×12 tức 78m2 em xây được nhà cấp 4 hiện đại hình chữ L gồm 1 phòng khách rộng 14m2 liên thông với phòng bếp ăn có vách ngăn trang trí. Phía sau chữ l đi vào có chổ để xe nếu cần và 1 phòng vệ sinh chung 1 phòng ngủ phía sau. Kinh phí xây nhà đẹp hiện đại khoảng 400 triệu em nhé.
Tôi sn1981 ở ngoại thành đất rộng nhưng kt eo hẹp hiện tôi có sẵn nhà gỗ 5 gian giờ tôi muốn bỏ 1gian bên rồi xây liền kề 50m2 lên 2 tầng trong đó t1:có bếp + phòng ăn +p.ngủ+1wc + Thang
T2: 2p.ngủ +1wc chung +thang
Tôi rất mong các kts thiết kế giúp,tôi chân thành cảm ơn
Xây giống như ngôi nhà ở trên thì mất khoảng bao nhiêu chi phí ạk 5×16 và thời gian xây bao lâu ạk 0932070735
Kinh phi khoang hon 1ty.quan trong la ban dung noi that trung binh hay cao cap thi gia thanh cung se giam hoac len.tg xd het 100 ngay. ks tuan
Em có miếng đất 5×16 nhưng em muốn xây 4 phòng ngủ thì chi phí cộng hết sẽ mất bao nhiêu ạk 0932070735 . Mong được tư vấn ạk em muốn nhà 2 tầng và 1 tum ạk
Xin chào kts .
Tôi dự định xây nhà : 1 mặt tiền hẽm phố , dt đất 24m x 5m . chỉ xd : 5m x 17m: 2 tầng , 1pk, 4pn ,1bếp, 2wc ,mái bằng bê tông , 2 cầu thang.
Tầm 950tr .trọn gói đủ không anh ? tháng 12/ 2018 xây .Sợ thiếu .
Rất cám ơn .
Chào bạn Hiệp. Chi phí xây nhà 2 tầng 5x17m x 2 sàn + mái bê tông như vậy đổ 2 mê bê tông cốt thép vật tư khá khoảng 1 tỷ anh nhé
Chào anh KTS! Tôi sinh năm 1977 đinh tỵ, vợ tôi sinh 1980 canh thân, tôi có 2 con trai, mình ở chợ Giồng Riềng, Kiên Giang. Tôi muốn xây nhà hộp rộng 6m dài 15 m, mặt tiền hướng về Tây Nam. Nhà làm 2 tầng và 1 tum mái tôn ở sân thượng (đỗ 2 tấm). Tầng 1: 1 phòng khách; 1 phòng ngủ; 1 phòng vệ sinh&tắm. Tầng 2 gồm: 1 phòng ngủ nhỏ, 1 phòng ngủ đôi, 1 vệ sinh& tắm; zân thượng gồm: 1 phòng thờ, 1 phòng giặc, trồng dây Leo, cây cảnh và khó gian thư giãn / sinh hoạt văn nghệ đón cả tài tử hoặc karaoke gia đình khoảng 10->20 người. Với số tiền 800 triệu (trọn gói, chìa khoá trái tay). Nhờ KTS tư vấn, cho xem bản đồ mặt bằng và mô phỏng 3D. Tel 0919433271. Email: HuyHung@gmail.com
Tôi có 1 mảnh đất 4*15 m2 .hiện nay tôi muốn xây dựng 1 trệt và 1 lầu. Tần trệt có 1 phòng khách,1 phòng ngủ, 1 Nhà bếp, 1tolet chung. Tần lầu thì có 1 phòng để thờ, 2 phòng ngủ. 1 tolet. Mình sinh năm 1982 còn vợ mình thi 1984 ,con gai 2015,và 1 Bé 2016 . Kinh phí tôi dự định xây khoảng 300 triệu. Nhờ kts tư vấn và thiết kế cho. Cám ơn nhiêu. Tôi tên Lại Văn Nhân dthoai 0122.57.07.717
Kinh phi phai 600 moi xay duoc ban a
A cho e nhin them vai hinh anh 3d mat truoc cua ngoi nha co duoc ko
Chào anh Trần Văn Bình chúng tôi đã có số điện thoại anh và thông tin KTS Vân sẽ tư vấn giúp anh sớm anh nhé.
Chào các kts Em là Trần Văn Bình
Em có mảnh đất 4,7*30 em muốn làm nhà diện tích 4,7*10m diện tích còn lại làm quán cafê sân vườn. Nhà trệt lầu kiên cố,tầng trệt gồm: 1pk,nhà ăn,nhà vệ sinh. Tầng gồm 3 phòng ngủ,giếng trời và 1phòng thờ. Em sinh năm 1981, vợ sinh 1983,con gái sinh 2014,con trai sinh 2015 kinh phí dự trù từ 500tr đến 600tr mong kts thiết kế cho em. Em xin chân thành cảm ơn.