Thiết Kế Nhà Đẹp Mới có rất nhiều bản vẽ kỷ thuật thi công nhà mái Nhật 1 tầng tân cổ điển lớn nhỏ. Trong đó đa phần là những bản vẽ xây dựng nhà vườn 4 phòng ngủ 1 phòng thờ ở quê đất rộng. Ngoài ra còn có các hồ sơ thiết kế nhà cấp 4 3 phòng ngủ mái ngói. Tuỳ theo đất rộng và chi phí dự trù ra sao khi liên hệ KTS công ty sẽ tư vấn giải pháp tối ưu khi xây nhà đẹp mới phong cách tân cổ điển châu âu

Sự cần thiết khi xây nhà mái Nhật tại Việt Nam
Nhà vườn đẹp phong cách tân cổ điển là sự kết hợp hài hoà giữa đường nét phào chỉ mềm mại châu âu và kiến trúc Á Đông. Đặc điểm nổi bật cửa nhà mái Nhật chính là hệ mái nhẹ nhàng thấp lùn hơn so với nhà nóc Thái. Sở dĩ hiện nay nhiều cùng miền tại Việt Nam nói riêng và các nước Đông Nam Á nói chung. Ưa thích kiến trúc nhà tân cổ điển mái lùn là bởi thời gian gần đây nước ta thường xuyên xãy ra bão giật cấp 10 đến cấp 13. Nhất là khu vực phía Bắc và miền trung. Chính vì thế việc xây nhà vườn mái Nhật kết cấu thấp sẽ hạn chế được gió lốc tóc mái.

Mặt bằng nhà vườn tân cổ điển mái Nhật cấp 4 10x17m
Thiết kế nhà tân cổ điển mái Nhật dễ hơn so với mái Thái. Chi phí xây dựng hoàn thiện cũng tiết kiệm hơn so với các kiểu nhà mái Thái. Lý do tiết kiệm được tiền vì kèo, công thợ và tiền ngói.. Đây là mặt bằng nhà vườn 1 tầng mái Nhật phong cách tân cổ điển 4 phòng ngủ 1 phòng thờ diện tích 10x17m trên

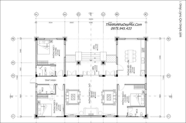
Bản vẽ cad nhà vườn mái Nhật 1 tầng tân cổ điển 9x20m
Dưới đây là bản vẽ gốc hình ảnh nhà vườn 1 tầng 4 phòng ngủ tân cổ điển anh Văn. Do công ty Nhà Đẹp Mới triển khai mới đây. Đây là bản vẽ kiến trúc nhà diện tích 9x20m xây trên đất rộng 12m sâu dài tới hơn 40m.

Tư vấn thiết kế nhà trệt mái Nhật tân cổ điển 9x20m
Mặt bằng thiết kế nhà tân cổ điển mái Nhật anh Văn có sảnh phụ bên hướng Nam. Với cửa đi 2 cánh gỗ liên thông kết nối với phòng ăn có cửa đi 1 cánh. Cách bố trí này là có ý đồ tạo sự linh hoạt cũng như lấy ánh sáng và gió mát cho khu vực phòng ăn gia đình đông thành viên. Do đất rộng nên phía sau nhà này còn có hành lang và gara để ô tô phía sau


Chiều cao nhà 1 tầng tân cổ điển mái Nhật
Có rất nhiều anh chị thắc mắc cần tư vấn xây nhà trệt mái nhật tân cổ điển lợp ngói thì cao bao nhiêu? Nên chọn loại ngói gì khi lợp phía trên có đổ trần sàn áp mái không? Thì
- Chiều cao thông thuỷ nhà cấp 4 mái Nhật tính từ sàn đến trền lọt lòng là 3.9m
- Tổng chiều cao từ sàn nhà đến trần phủ bì khoảng 4.1 đến 4.2m là đẹp
- Nên sử dụng ngói đất nung hay ngói Fuji cho tốt
- Chi phí đổ sàn áp mái rồi làm vì kèo lợp thì phát sinh khoảng hơn 100 triệu

Kết nối thiết kế nhà cấp 4 tân cổ điển 180m2 năm 2026
Anh chị cần bản vẽ autocad nhà mái Nhật cấp 4 tân cổ điển 180m2 anh Văn này. Thì xem đầy đủ ở Chuyên Mục Này cần bản vẽ chi tiết cho thợ ở quê biết mà thi công xây thì liên hệ. Hay có thể liên hệ công ty để thiết kế xây trọn gói cho đẹp theo phong thuỷ 2026.

Mẫu nhà mái Nhật 1 tầng tân cổ điển ở quê
Còn đây là mặt tiền nhà vườn 1 tầng tân cổ điển diện tích xây dựng 200m2 sàn. Căn nhà đẹp phong cách châu âu 4 phòng ngủ 1 phòng thờ phù hợp với đất rộng ở quê. Anh chị ưa thích phong cách kiến trúc này thì liên hệ tư vấn thêm vì đây là bản quyền của công ty mình có file gốc autocad full cả hồ sơ thiết kế nội thất tân cổ điển nhà mái Nhật

Mẫu nhà cấp 4 tân cổ điển ở thôn quê 140m2 3 phòng ngủ
Góc nhìn bên phải nhà cấp 4 mái Nhật tân cổ điển 140m2 dưới là của vợ chồng em Phú. Cách thiết kế kiểu 1 tầng mái vòm có sảnh rộng. Kết hợp với các chi tiết hoa văn cầu kỳ, phào chỉ tinh xảo, cột trụ lớn chắc chắn, hệ cửa sổ vuông vức và 2 sảnh rộng, tạo nên vẻ đẹp hoài cổ, sang trọng và quyến rũ.

Thông tin thiết kế nhà mái nhật 3 gian mặt tiền 11m
Gia đình ông Phú ở quê thích kiến trúc nhà mái Nhật 1 tầng 3 gian nghĩa là 2 bên có 2 cửa sổ và sảnh chính ở giữa. Chi phí tiết kiệm khoảng 800 triệu, Cũng như ưa thích phong cách tân cổ điển có chỉ phào đắp nổi. vị khách này nghiên cứu rất lâu và cần thiết kế khác biệt. Ông hơi khó tính cần khối nhà 3 gian mặt tiền 9m phía trước. Nếu có sảnh phụ bên hông 1.

Chi phí xây nhà 1 tầng mái ngói tân cổ điển 2026
Hiện nay chi phí vật liệu xây dựng đều đồng loạt tăng cao. Nên việc xây nhà vườn 1 tầng mái Nhật có 1 phòng thờ 3 phòng ngủ kiểu châu âu có nhiều chi tiết phào chỉ cũng vi thế mà tăng cao. Nếu như xây nhà cấp 4 mái nhật lợp tôn thì tiết kiệm được khoảng tầm 50 triệu. Còn xây nhà đẹp 1 tầng tân cổ điển mái ngói thì
- Chi phí xây dựng phần thô trọn gói cả nhân công khoảng 4 triệu/m2
- Chi phí xây nhà trọn gói biệt thự mái Nhật là 7,2 triệu/m2 đến 7.5 triệu/m2.

Ý tưởng kiến trúc nhà vườn tân cổ điển đẹp mái nhật ở quê
Mẫu nhà mái Nhật 1 tầng đẹp ở nông thôn của ông Phú có diện tích 140m2. Tối ưu theo kiến trúc nhà mặt tiền tỷ lệ bề ngang 9m phía ngoài sảnh chính có hình bán nguyệt khác biệt. Hai bên hàng hiên cột tròn kiểu I ô níc phong cách villa cổ điển châu âu. Ngôi nhà vườn trệt tân cổ điển 9x16m thiết kế có móng cao ráo tạo sự bề thế cho ngôi nhà.

Mẫu biệt thự mái Nhật 1 tầng tân cổ điển ông Khách
Dưới đây là mẫu biệt thự vườn 1 tầng mái Nhật tân cổ điển có diện tích sử dụng 200m2 sàn. Chưa tính sảnh chính và phụ. Không gian thiết kế kế 5 phòng ngủ 1 phòng thờ. Anh chị xem thêm thông tin tại đây để khám phá thêm nếu cần xây nhà tiền tỷ năm 2026.

Nhà vườn hình chữ U 1 tầng tân cổ điển Tam Hợp Viện mái Nhật
Cần đề cao sự tiện nghi và sự kết nối giữa thiên nhiên với con người. Mối quan hệ gắn kết giữa các thành viên thì bạn nên chọn mặt bằng bố trí có phòng khách rộng. Phòng thờ và đặc biệt là không gian phòng bếp ngoài cùng của bản vẽ công năng xây nhà kiểu Tam hợp viện chú Vỹ của công ty mình dưới đây

Thông tin thiết kế nhà 1 tầng mái Nhật hiện đại chú Vỹ
Đây là mẫu nhà vườn hình chữ U 1 tầng mái Nhật có 3 phòng ngủ. Trong đó có 2 phòng master có nhà vệ sinh chung trong phòng. Và một nhà vệ sinh chung cho cả tầng thiết kế gia trung tâm có 3 cửa. Anh chị xem ở Bài Viết Này cần bản vẽ thì liên hệ

Mẫu biệt thự 1 tầng mái Nhật tân cổ điển châu âu 220m2
Anh chị xem đầy đủ Tại Bài Viết Này nếu cần bản vẽ thiết kế nhà cấp 4 tân cổ điển kiểu biệt thự phong cách châu âu 1 tầng ở quê nông thôn nghỉ dưỡng. Mà nhu cầu xây nhà mái ngói diện tích sử dụng khoảng 220m2 ngang 11m dài 20m gồm
- Cần 4 phòng ngủ đều có 4 phòng vệ sinh khép kín
- Không gian bếp thiết kế ở sau nhà
- Phòng thờ riêng rộng có sảnh phụ
- Đặc biệt là có nhà gara để xe ô tô trong nhà như hình vẽ mặt bằng dưới

Anh chị cần thiết kế nhà đẹp mới theo phòng thuỷ và tài chính. Cũng như ưa thích kiến trúc nhà vườn mái nhật kết hợp giữa nét truyền thống Á Đông và hiện đại châu âu tân cổ điển. Vui lòng liên hệ 0975 945 433 để công ty có thể tư vấn thêm về phong thuỷ. Làm rõ các trang thiết bị hoàn thiện như nội thất trước mà chuẩn bị. Trân trọng cảm ơn.!







































