Anh chị cần tìm các kiểu nhà lợp ngói hay lợp tôn rộng khoảng 150m2 đến 250m2. Thì những mẫu nhà cấp 4 mái Nhật 4 phòng ngủ 1 phòng thờ sau giúp ích để tham khảo mà chọn cho năm 2026 – 2027 tới

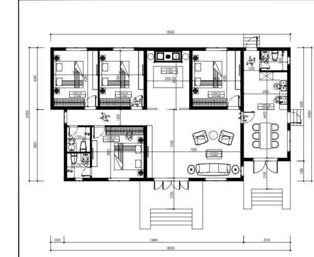
Mặt bằng nhà vườn 1 tầng 4 phòng ngủ mái Nhật 180m2
Trước hết nhằm giúp bà con mình ở quê có đất bề ngang rộng khoảng 20m. Cần bản vẽ xây nhà vườn 1 tầng 4 phòng ngủ mái ngói. Kích thước thiết kế bề ngang 18m còn bề sâu ra sau khoảng 10m đến 12m. Chi phí xây dựng khoảng trên dưới 1.5 tỷ nếu lợp tôn giả ngói. Trường hợp nếu thi công hoàn thiện mẫu nhà biệt thự nhà vườn cấp 4 mái Nhật lợp ngói thì khoảng hơn 1.6 tỷ.

Tư vấn xây nhà cấp 4 mái Nhật 4 phòng ngủ 2026
Lưu ý chi phí xây nhà cấp 4 đẹp có 1 phòng thờ và 4 phòng ngủ mái Nhật năm 2026. Như đã trình bày ở trên với trường hợp:
- KTS công ty mình thiết kế giám sát với giá rẻ 100 nghìn/m2
- Anh chị mua vật tư tại đại lý vật liệu xây dựng nơi gần nhất
- Giao khoán hợp đồng nhân công tại địa phương

KTS thiết kế nhà trệt mái Nhật đẹp gồm những gì
Giá thiết kế nhà đẹp mới năm 2026 cho nhà trệt một tầng mái Nhật 100 nghìn/m2 là có đầy đủ hồ sơ kỹ thuật xây dựng như điện nước như cáp quang in tơ nét.. Bản vẽ kết cấu dầm, sàn, móng.. Bản vẽ chi tiết kiến trúc khai triển bản vẽ như cửa đi, cửa sổ, cửa chính, mặt bên, chi tiết thi công chống thấm, sàn, mái, bản vẽ cửa chính.. hoàn hỉnh và khoa học

Miễn phí xây nhà mái Nhật 1 tầng 4 phòng ngủ 1 phòng thờ
Ngoài các hình ảnh 3D ngoại thất mặt tiền nhà cấp 4 mái Nhật đẹp. Còn miễn phí thiết kế sân vườn và cảnh quan xung quanh cho anh chị. Tư vấn thêm các hạng mạng hoàn thiện nội thất và tường rào, cổng chính.. nếu cần.. Nếu anh chị tin tưởng giao xây nhà biệt thự cấp 4 mái Nhật trọn gói lợp tôn giả ngói tiết kiệm. Thì công ty sẽ miễn phí thiết kế xây nhà mới đẹp cho anh chị.

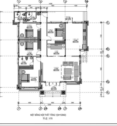
Mẫu nhà cấp 4 4 phòng ngủ 150m2 tân cổ điển 2026
Bản vẽ thiết kế nhà vườn cấp 4 mái Nhật đẹp này phù hợp với các mảnh đất rộng bề ngang khoảng 15m. Còn về sâu rộng khoảng 20m mà đẹp. Kích thước thiết kế không gian sử dụng nội thất bên trong nhà trệt cấp 4 mái ngói này là 150m2. Chưa tính sảnh chính và phụ cũng như mái văng đua ra xung quanh.

Chi phí xây nhà vườn 1 tầng 4 phòng ngủ 150m2
Chi phí xây nhà cấp 4 tân cổ điển mái Nhật có 4 phòng ngủ 150m2 này khoảng tầm trên dưới 1.3 tỷ. Sở dĩ cao hơn là do có nhiều chi tiết gờ phào trang trí cũng như hoa văn mềm mại. Anh chị có thể lợp tôn giả ngói với giải pháp chống thấm của bản vẽ kiên trúc sư mình.

Các kiểu nhà trệt cấp 4 4 phòng ngủ mái ngói đẹp 160m2
Khi xem những mẫu nhà cấp 4 mái Nhật 160m2 thiết kế có 4 phòng ngủ 1 phòng thờ trên mạng xã hội và Youtube. Đa số họ giật tít câu view hay câu like là chủ yếu. Chứ thực tế hoàn thiện đưa vào sử dụng phát sinh hơn nhiều thậm chí là gấp rưỡi so với những gì họ nói. Chính vì vậy khi yêu cầu thiết kế nhà vườn 1 tầng 4 phòng ngủ mái Nhật bạn phải hỏi rõ có phần khai triển dự toán chi phí cho từng hạng mục không? Điều này là cần thiết để bạn biết và mua vật tư loại gì cho phù hợp với tài chính.

Lưu ý khi thiết kế nhà cấp 4 mái nhật bằng công nghệ AI
Với thời đại công nghệ 5.0 phát triển ngày càng vượt trội. Nhất là phần mềm AI rất phát triển hình ảnh rất nét và đẹp chỉ cần vài phút là có hình ảnh. Tuy nhiên AI thông minh đến đâu thì cũng phải cần có KTS thiết kế vẽ chi tiết kiến trúc kỹ thuật. Bổ kết cấu móng và điện nước kết cấu chứ AI không bổ được. Hơn nữa thiết kế bằng AI rất khó để thi công thậm chí có thể nói không thi công được theo hình ảnh có sẵn.

Những bản vẽ xây nhà cấp 4 mái Nhật bốn phòng ngủ khác
Nhà Đẹp Mới ở nông thôn có rất nhiều bản vẽ thi công nhà trệt mái nhật đẹp theo phong thuỷ. Kiểu kiến trúc nhà cấp 4 mái ngói tân cổ điển. Cũng như nhà vườn 1 tầng 4 phòng ngủ hiện đại 150m2 đến 250m2 rộng rãi. Anh chị xem thêm hình ảnh thi công thực tế tại Bài Viết Này có file gốc nếu cần tiết kiệm tiền thuê KTS thiết kế.

Biệt thự nhà vườn mái Nhật 4 phòng ngủ kiểu tam hợp viện
Công ty Nhà Đẹp Mới gửi đến anh chị bản vẽ đầy đủ kiến trúc nhà Tam Hợp Viện 250m2. Đã thiết kế xây nhà theo phong thuỷ năm ngoái cho gia đình anh Trọng chị Hằng. Mẫu thiết kế biệt thự nhà vườn chữ U 4 phòng ngủ mái Nhật. Bà con vui lòng truy cập tham khảo Ở Đường Dẫn Này nếu có đất rộng ở quê nông thôn. Công ty có up lên website khá đầy đủ các bản vẽ gốc chi tiết này

Bản vẽ nhà vườn 4 phòng ngủ mái Nhật kiểu 2 mặt tiền
Còn hình ảnh dưới đây là mẫu nhà cấp 4 mái Nhật 5 phòng ngủ mới. Vừa thiết kế cho gia đình anh Thành mà hoá giải trên đất gần như 2 mặt tiền không hợp tuổi. Sau khi khảo sát đo đạc tư vấn thiết kế KTS mình đã thiết kế cổng chính theo nguyên tắc Thanh Long – Bạch Hổ như hình dưới. Anh chị xem Tại Đây để khám phá thêm góc nhìn khác và bài viết tư vấn xây nhà chữ L mái Nhật. Nếu cần xây nhà kiểu này mà nhu cầu sinh hoạt gồm 4 phòng ngủ 1 phòng thờ diện tích nhỏ hơn.

Mặt bằng nhà cấp 4 mái Nhật 8x20m 4 phòng ngủ
Dưới đây là công năng sinh hoạt dành cho gia đình 3 thế hệ gồm ông bà, cha mẹ và 2 con. Tương ứng với nh cầu cần xây nhà cấp 4 mái Nhật 4 phòng ngủ trên đất mặt tiền rộng 9m hay 10m. Diện tích thiết kế 8x20m chòn chừa hành lang lối đi xung quanh mỗi bên 1m và sân trước.

Kết nối thiết kế nhà cấp 4 mái Nhật đẹp mà chuẩn bị
Sự chuẩn bị bản vẽ và dự toán vật liệu trang thiết bị nội thất hoàn thiện trước là điều cần thiết. Tránh trường hợp xây lên không ưng ý rồi phải tháo dỡ xây lại. Cũng như tránh trường hợp xây nhà đẹp ở quê phát sinh ngoài mong muốn.

Anh chị cần thiết kế nhà đẹp cấp bốn mái Nhật vui lòng liên hệ 0975 945 433 cho biết nhu cầu tài chính và diện tích đất rộng và sâu ra sao? Để KTS công ty mình tư vấn thiết kế nhà biệt thự sân vườn cấp 4 mái Nhật lợp ngói hay tôn cho khoa học. Trân trọng cảm ơn.!






































