Bài viết này cập nhật những mẫu nhà vuông 2 tầng đơn giản mái thái có. Kiến trúc kiểu mái Nhật cũng có diện tích khoảng 90m2 đến 100m2 và 110m2 4 phòng ngủ.
Những mẫu nhà vuông 2 tầng đơn giản đã vẽ
Những bản vẽ xây kiểu nhà vuông 2 tầng đơn giản sau có diện tích sàn tầng trệt 100m2. Mặt bằng tầng 2 60m2 thiết kế có 3 4 phòng ngủ 1 phòng thờ không gian rộng rãi. Nhà mái ngói ở nông thôn giá rẻ thiết kế theo kiến trúc mái thái có 4 mặt đều thoáng trên khu đất vườn rộng rãi. Mời quý vị cùng tham khảo mẫu nhà vườn 4 phòng ngủ diện tích 100m2. Với thông tin và bản vẽ mặt bằng nhà đơn giản thiết kế nhà 1 trệt 1 lầu 10x10m như sau. Ngoài ra còn có bản vẽ nhà 5 phòng ngủ hình vuông với mặt bằng tầng 1 có 2 phòng ngủ anh Hiệp
- Mẫu nhà vuông 2 tầng mái bằng thiết kế đơn giản giá rẻ cho anh Đại
- Anh chị tham khảo thêm bản vẽ biệt thự mini 2 tầng 5 phòng ngủ anh Hiệp hình dưới


Các mẫu nhà vuông 2 tầng đơn giản mái Nhật
Nếu có đất hình vuông cần xây 2 tầng đơn giản mái Nhật. Thì bạn làm theo hướng dẫn để xem đầy đủ hơn về mặt bằng. Cũng như cách bố trí bên trong nhà có 4 đến 5 phòng ngủ mình ví dụ như biệt thự mini trên diện tích 100m2. Vẽ và thiết kế cho gia đình anh Giang thiết kế xây ở quê có phòng bếp 1 bên riêng vì đất rộng nông thôn. Lưu ý TRUY CẬP TẠI ĐÂY mà xem bản vẽ hồ sơ nhà mái Nhật thiết kế đơn giản cửa nhôm kính. Chi phí tiết kiệm này


Bản vẽ nhà biệt thự 2 tầng hình vuông xây trên đất vuông
Nếu có đất hình vuông khoảng 15×15 hay 16×17 xéo xíu cũng được. Bạn cần tìm mẫu nhà vuông 2 tầng đơn giản có chừa 1 khoảng sân và đường luồng bên sảnh. Phong thủy hợp hướng nhà thiên về hướng tây thì bấm xem bản vẽ thiết kế biệt thự 2 tầng hiện đại anh Dũng. Mà tham khảo nhà không gian mở không cầu kỳ chi tiết


Mẫu biệt thự 2 tầng hình vuông tân cổ điển
Mẫu nhà vuông 2 tầng đẹp này cũng xây trên đất vuông rộng. Ý tưởng thiết kế biệt thự tân cổ điển mái ngói dành cho gia đình có điều kiện. Với giải pháp xây 1 bên đất còn chừa hành lang bên hướng Đông Nam. Biện pháp xây nhà tận dụng luồng gió mát tự nhiên bên hướng Đông Nam cung sinh khí. Diện tích xây khoảng 11x11m cũng mái Nhật. Qúy vị vui lòng THAM KHẢO BẢN VẼ Ở ĐƯỜNG DẪN NÀY mà chọn. Nói chung tùy tài chính đầu tư khoảng 2 tỷ trên dưới mà chỉnh


Mẫu nhà hiện đại hình vuông 2 tầng nông thôn đơn giản
Đây là bản vẽ nhà 2 tầng nông thôn mái ngói vẽ cho gia đình anh Minh. Nhu cầu xây nhà hình vuông 2 tầng đơn giản ở quê tiết kiệm khoa học. Kiến trúc kết cấu chắc chắn vó khối 3 gian ngang 12m sâu 11m. Nếu cần bản thiết kế nhà vuông 2 tầng cho thợ xây bạn hãy TRUY CẬP ĐƯỜNG DẪN NÀY mà xem bản vẽ này trước rồi liên hệ


Bản vẽ nhà vuông 2 tầng đơn giản ở Hải Dương
Cũng như nhà anh Minh trên gia đình chị Phương ở Hải Dương. Cần bản vẽ thiết kế nhà 3 gian 2 tầng kiểu 2 chái đơn giản diện tích sử dụng khoảng tầm 100m2 x 2 tầng. Chị cần bản vẽ để thợ ở quê Hải Dương xây cho khoa học. Bạn xem tiếp thông tin


Tư vấn thiết kế nhà vuông 2 tầng đơn giản ở nông thôn
Mẫu nhà 2 tầng đơn giản nông thôn thiết kế với chi phí khoảng 800 triệu. Theo kiến trúc mái ngói cho gia đình chị Phương. Xét về kiến trúc mô hình thì đây là một trong những mẫu nhà cấp 4 mái thái kiểu hình vuông 2 tầng. Mái lợp ngói đơn giản nội thất sử dụng cửa nhựa lõi thép kính cường lực sơn PU tông màu nâu giả gỗ. Mẫu nhà 2 tầng đẹp mái thái còn thiết kế theo kiến trúc nhà ở truyền thống 3 gian nhưng phối thêm cái ống khói phong cách nhà cấp 4 đẹp kiểu Mỹ bên phải nhằm tạo điểm nhấn khác biệt một chút so với các mẫu nhà 2 tầng nông thôn bình thường
Thông tin dự án bản vẽ nhà 2 tầng đơn giản ở quê hình vuông
- Công trình thiết kế nhà 2 tầng mái thái đơn giản ở nông thôn
- Kiến trúc: Nhà cấp 4 2 tầng ba gian 2 chái mái ngói truyền thống
- Chủ đầu tư: Chị Phương
- Địa chỉ: Hải Dương
- Phụ trách kết cấu: KS Hai
- Đơn vị thiết kế thi công: Công ty cổ phần đầu tư xây dựng Nhà Đẹp Mới
- Chi nhánh văn phòng kiến trúc sư Hà Nội
- Diện tích đất vườn: 15 dài 20 = 300m2
- Diện tích thiết kế xây dựng: 160m2
- Năm thiết kế thi công cập nhật 2025
- Mức đầu tư cho bản vẽ này là 1.1 tỷ


Ý tưởng của mẫu nhà vuông 2 tầng đơn giản nông thôn
Khuôn viên nhà chị Phương có diện tích tổng thể ngang 15m dài 20m thôi. Nên phương án thiết kế nhà 2 tầng 10×10 lùi ra sau cách tường rào 2m cho thoáng. Mẫu nhà mái thái 4 phòng ngủ hình vuông ở quê. Còn thiết kế sát vách tường nhà hàng xóm chừa lại 1,5m làm tường rào và mở cửa sổ cho thoáng. Phía sân trước từ cổng vào thiết kế chừa lại 8m để xe ô tô và sân phơi thóc lúa, cổng.. Còn lại bên thiết kế chừa 3,5m lối đi và lấy sáng cho phòng bếp ăn và sảnh phụ bên hông nhà.


Chi tiết mẫu nhà vuông hai tầng đơn giản 10x10m
Mẫu nhà 2 tầng mái thái hình vuông đơn giản mà đẹp 160m2 thiết kế đơn giản. Sử dụng vì kèo thép lợp ngói kiểu nhà hai chái phong cách nông thôn miền Bắc đặc trưng. Phía ngoài mặt tiền nhà 2 tầng đơn giản ở quê Hải Dương thiết kế có tiền sảnh chính rộng ngang 3.2m. Chiều dài sâu vào trong 1.5m có 3 tầng cấp bước lên đại sảnh. Mặt tiền bên ngoài mẫu nhà 4 phòng ngủ 1 phòng thờ 160m2 thiết kế ngoại thất sơn màu trắng sữa. Còn mái lợp ngói màu nâu có thể thay màu đỏ cũng được. Phong cách thiết kế gần giống với các mẫu nhà cấp 4 có gác lửng nông thôn đơn giản khác
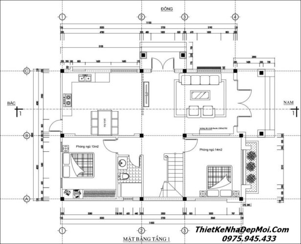
Mặt bằng không gian nhà vườn 4 phòng ngủ đơn giản ở quê
Mẫu nhà vườn 4 phòng ngủ có mặt bằng thiết kế thông thoáng trong đó phòng rộng nhất 32m2 không gian bếp và bàn ăn thiết kế rộng 14,5m2. Một phòng tắm Vip rộng 6,6m2 có bồn tắm nằm. Không gian cầu thang lối lên tầng 2 đưa về bên trái ở giữa ngôi nhà áp sát tường. Ngoài ra mặt bằng tầng 1 nhà cấp 4 đẹp 2 tầng mái ngói ở quê thiết kế có 2 phòng ngủ trong đó phòng ngủ bố mẹ chị Phương thiết kế ở sau cùng rộng 14,5m2 còn phòng ngủ vợ chồng chị Phương thiết kế phía ngoài cùng rộng lọt lòng 15,3m2


Cách xây nhà hình vuông 2 tầng mái thái đơn giản
Từ lối cầu thang mẫu nhà vuông 2 tầng đơn giản đi lên tầng 2 thiết kế có 1 phòng sinh hoạt chung nằm đối diện với cầu thang sảnh tầng. Bên ngoài cùng thiết kế phòng thờ còn phía sau cùng góc trái thiết kế sân phơi. Ngoài ra còn có 1 phòng tắm vệ sinh cạnh cầu thang. Và 2 phòng ngủ riêng biệt cho 2 con trai gái khác nhau. Kích thước các phòng ở tầng 2 mẫu nhà 2 tầng mái thái hình vuông. Thiết kế đơn giản diện tích 62m2 ở trên
Mặt bằng tầng 2 nhà hình vuông mái thái trên là 62m2 như sau
- Diện tích phòng thờ: rộng gần 10m2
- Phòng ngủ 3 rộng 12,3m2
- Phòng ngủ 3: 10,6m2
- Phòng tắm vệ sinh chung: 3,8m2
- Sân phơi: 6,6m2
- Còn lại sinh hoạt chung và cầu thang


Tổng quan nhà 2 tầng hình vuông 4 phòng ngủ đơn giản ở nông thôn
Mẫu nhà hình vuông 2 tầng 4 phòng ngủ 1 phòng thờ có cốt chiều cao tầng trệt 3,8m. Thông thủy lọt lòng tầng lầu cao 3,4m còn kết cấu mái cao gần 3m. Như vậy tính từ mặt bằng sàn trệt lên đến nóc cao hơn 10m. Nghĩa là gần giống với kiểu nhà hình vuông 1.5 tầng mái thái.


Bản vẽ chi tiết thi công nhà vuông đơn giản mái thái 2 tầng
Do khu đất và địa hình mặt bằng đất cao ngang mặt đường. Nền đất tự nhiên tốt nên mẫu nhà vườn 2 tầng đơn giản 160m2 sử dụng. Chỉ cần xây móng cóc và nâng cốt móng lên 45cm tương đương với 3 bậc. Hơn nữa do kiến trúc nhà mái thái 4 phòng ngủ 2 tầng hình vuông lợp ngói ở Hải Dương. Nên khá mát mẻ và giải pháp chống ồn vào mùa mưa.
Lý do bạn nên xây nhà 3 gian 2 chái hình vuông đơn giản này
Thứ 2 do cách và ý tưởng thiết kế với 4 mặt trước sau và hai bên đều thông thoáng. Nên mẫu nhà 2022 cập nhật lại xây tại Hải Dương cho gia đình chị Phương này. Ta không lo bị thiếu ánh sáng vì có lối đi xung quanh nhà và mở cửa sổ được. Bên sảnh phụ hướng Đông Nam có trổ thêm 1 cửa hông lấy gió mát tự nhiên từ bên ngoài cho sảnh tầng phòng khách. Khu vực bếp và bàn ăn cũng có cửa sổ thoáng mát nhiều ánh sáng.


Những mẫu nhà vuông 2 tầng đơn giản mà đẹp khác
Nhìn từ hướng Đông nhìn sang thì mẫu nhà 2 tầng đơn giản thiết kế có 3 mái giật cấp. Đây là kiểu nhà ngang 3 gian 2 tầng từ sảnh tời lên đến nóc kiểu đan xếp. Viền mái bên ngoài mẫu nhà đẹp cấp 4 1 trệt 1 lầu đơn giản ở nông thôn miền Bắc Việt Nam. Bản thiết kế có đổ viền mái kẻ chỉ trắng. Và các giải pháp thoát nước nhanh chống ẩm cho trần nhà. Chân tường nhà 2 tầng đơn giản giá rẻ thiết kế ốp đá rối màu vàng nhạt cao 980mm. Ngoài ra tường ngoài cùng lối sảnh phụ đi vào nhà xây gạch thông gió trắng hình vuông có thể để xe máy ở đây cũng được


Ngoài ra bạn HÃY XEM TẠI ĐÂY nếu thích nhà kiểu thông tầng hình vuông. Nghĩa là ngồi ở phòng khách nhìn lên được phía trên có phòng thờ nếu có đất ngang 10m sâu 12m gần như hình vuông. Chi phí xây hết 1.3 tỷ nhà anh Cẩn mái thái cũng hình vuông hiện đại. Kiểu như nhà vườn mái thái hình vuông có gác lửng và sân thượng 2022
Những bản vẽ xây nhà chữ L hình vuông trên đất vuông đẹp 2 tầng
Gửi thêm các anh chị mẫu nhà vuông chữ l 2 tầng 5 phòng ngủ anh Hoàng. Cũng là 1 trong những kiểu nhà biệt thự mini hình vuông 1 trệt 1 lầu. Cũng xây trên đất vuông mái thái chi phí xây phần thô 1 tỷ còn trọn gói nội thất tốt là 1.2 tỷ


Kết nối xây nhà vuông 1 trệt 1 lầu đơn giản phong thủy
Trên đây công ty thiết kế nhà đẹp chúng tôi vừa cập nhật nhanh mẫu nhà vuông 2 tầng đơn giản diện tích 10×10. Có tổng diện tích sử dụng 160m2 mái ngói. Công năng sử dụng của mẫu thiết kế nhà vuông 2 tầng 4 phòng ngủ 1 phòng thờ. Cho 3 thế hệ với chi phí hồ sơ dự toán xây nhà 2 tầng 10x10m năm 2025 khoảng hơn 1 tỷ. Ví dụ như nhà chị Phương. Còn nếu thích nhà mái Nhật tân cổ điển 3 tầng thì có hồ sơ nhà chị Lành anh Tiệp như sau


Đừng hờ hững nếu bạn ưa thích biệt thự mini 1 trệt 2 lầu mái Nhật tân cổ điển này. Hãy XEM ĐẦY ĐỦ HƠN TẠI ĐƯỜNG DẪN NÀY mà chọn kiểu nhà vuông 3 tầng hiện đại 90m2/sàn sử dụng này. Chi phí cũng không quá cao đâu. Ngoài ra còn có mẫu nhà vuông 3 tầng mái bằng 10×10 vẽ cho anh Đại này
Các mẫu nhà vuông 2 tầng mái bằng đơn giản
Gửi thêm bản vẽ nhà vuông 2 tầng mái bằng 80m2 có 4 phòng ngủ của anh Quảng. Có hồ sơ hoàn chỉnh và cả hình nhà anh Đại bạn xem thế đất nhà mình có hợp không nhé




Tham khảo thiết kế nhà vuông lợp ngói đơn giản 2025
Hi vọng đáp ứng nhu cầu xây nhà ba gian 2 chái hiện đại. Hay các kiểu kiến trúc truyền thống ở nông thôn 3 gian 2 chái đơn giản chị Phương hợp với ngữ cảnh và phong thủy nhà ở quê nông thôn. Xem thêm
- Cách xây nhà 2 tầng 10x10m bác An
- Mẫu nhà vuông 2 tầng mái thái xây trên đất 15×15 chị Linh
- Mẫu nhà vuông đẹp 2 tầng đẹp nhất ở nông thôn






Bản vẽ xây nhà vuông mái Nhật 4 phòng ngủ đơn giản 2 tầng
Trên đây là gần 20 phương án concept ý tưởng xây nhà vườn 2 tầng hình vuông. Kiến trúc có 3 đến 4 phòng ngủ đơn giản mái Nhật và mái thái. Thậm chí có 2 hồ sơ nhà anh Quảng và anh Đại trên. Ngoài ra cần xây nhà diện tích 90m2 2 tầng 4 phòng ngủ mái Nhật đơn giản. Chi phí khoảng 1.1 tỷ trên dưới ở quê nông thôn hình vuông như mặt bằng dưới. Thì tham khảo kiểu nhà lợp ngói TẠI ĐÂY mà chuẩn bị cho năm 2026


Hãy gọi cho anh Bản phó giám đốc công ty cổ phần mình 0975 945 433. Trình bày thề đất năm sinh, phong thủy, hướng đất, tài chính, các phòng.. Để tư vấn xây nhà vuông phong thủy đẹp cho thời gian sắp tới. Cám ơn.!







































