Mỗi cây mỗi hoa mỗi nhà mỗi cảnh, mỗi tuổi mỗi thế đất và kinh phí. Gửi đến anh chị những mẫu nhà vườn 1 tầng 4 phòng ngủ 1 phòng thờ đẹp. Với phối cảnh 3D Kiến trúc cũng như các mặt bằng bố trí sơ đồ công năng nhà mái Nhật, mái Thái và mái bằng hiện đại. Anh chị thấy hợp với tài chính và nhu cầu sử dụng cũng như thế đất mặt tiền rộng hợp ở quê nông thôn nào thì liên hệ

Hình ảnh nhà vườn 1 tầng 4 phòng ngủ 1 phòng thờ ở quê
Mẫu nhà nằm ngang đẹp mái Nhật ở quê này thiết kế bề rộng 20m về sâu hơn 10m. Diện tích sử dụng bên trong là 220m2. Đây là kiểu nhà mái Nhật trệt cấp 4 lợp ngói chiều cao thông thuỷ tính từ mặt sàn lên trần cao 4.0m. Cửa đi 4 cánh thiết kế cửa gỗ theo kích thước lỗ ban sơn màu cánh dán. Còn các cửa đi 2 cánh và 1 cánh hay cửa sổ thiết kế đồng bộ sử dụng nhôm kính xingfa. Kiến trúc hiện đại nhưng pha chút tân cổ tối giản để không lỗi thời.


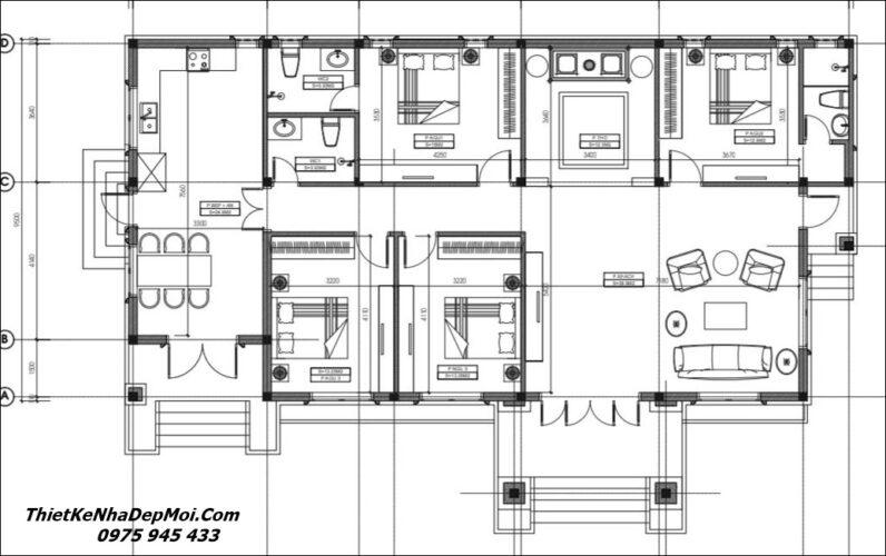
Mặt bằng nhà vườn mái Nhật 4 phòng ngủ 1 phòng thờ 200m2
Bản vẽ thiết kế xây nhà ngang 20m lợp ngói ở quê 1 tầng 4 phòng ngủ 1 phòng thờ mái Nhật ở nông thôn. Kiểu kiến trúc biệt thự trệt cấp 4 có sân vườn diện tích xây 200m2. Bản vẽ Kiến trúc đẹp vừa tương ứng với các phong thủy xây nhà theo tuổi năm 2026.

Mẫu nhà vườn đẹp 200m2 mái Nhật có 4 phòng ngủ và thờ
Với tầm tài chính khoảng trên dưới 2 tỷ cần xây nhà mái ngói kiểu biệt thự trệt sân vườn có 4 phòng ngủ và không gian thờ ở gian chính điện. Thì có kiểu nhà vườn đẹp diện tích sử dụng khoảng 200m2 này thì cũng rất khả thi để anh chị tham khảo xây nhà mới đẹp năm 2026 này

Lưu ý khi tham khảo xây nhà vườn có 4 phòng ngủ 1 phòng thờ 2026
Do đây là bài viết tổng hợp các kiểu nhà vườn mà nội thất không gian bên trong có một phòng thờ và bốn phòng ngủ. Nên nội dung khá dài gần 5000 từ chủ yếu anh chị tham khảo cách bố trí sơ đồ bên trong xem có phù hợp với cách sinh hoạt riêng của gia đình mình hay không? Ngoài ra thế đất có phù hợp cho phép tài chính dự trù xây nhà mái ngói 1 tầng hay không?

Giá xây dựng phần thô nhà vườn mái Nhật ở quê là gì
Nhà ở quê hay còn gọi là nhà vườn ở nông thôn. Trong đó nếu xây nhà ngang 1 tầng mái Nhật như vậy mà phần thô với giá 4 đến 4.2 triệu/m2. Là đã bao gồm những gì
- Đã bao gồm vật tư xây thô mức tốt như xi măng, cát đá, ngói, móng…
- Giá xây dựng phần thô là chưa có sơn, gách đá ốp lát, điện..
- Đã bao gồm phần nhân công hoàn thiện như hình
- Đã bao gồm đi các đường điện âm tường, hệ thống cấp thoát nước

Giá xây nhà vườn 1 tầng có 4 phòng ngủ năm 2026
Đơn giá thi công xây dựng nhà 1 tầng 4 phòng ngủ 1 phòng thờ trọn gói hiện nay khoảng 7.3 đến 7.5 triệu/m2. Theo bản vẽ thiết kế của KTS xây ở nông thôn đất rộng thì tuyệt vời. Công ty thiết kế nhà đẹp cập nhật thêm bản vẽ biệt thự vườn 1 tầng bốn phòng ngủ 1 phòng thờ đã thi công hoàn thiện như sau

Giá xây dựng hoàn thiện nhà cấp 4 4 phòng ngủ trọn gói gồm những gì
Giá xây dựng hoàn thiện trọn gói kiểu chìa khoá trao tay nhà vườn 4 phòng ngủ đẹp trên là đã bao gồm:
- Nội thất cơ bản như cửa chính, hệ thống cửa sổ, sơn tường..
- Gách đá, thiết bị vệ sinh, điện, đèn cáp quang intenet..

Hình ảnh kiến trúc nhà vườn 1 tầng 4 phòng ngủ 160m2
Dưới đây là mẫu biệt thự nhà vườn cấp 4 diện tích 160m2. Bản vẽ nhà có 4 phòng ngủ 1 phòng thồ. Chi phí rẻ khác theo tài chính khoảng 1.7 tỷ hiện nay. . Cũng kiểu 3 gian mái ngói này mà xây nhà 1 tầng mái Nhật nhưng chỉ cần 3 phòng ngủ cũng được. Quý vị xem bài viết bản vẽ nhà anh Thọ Mười ở Thanh Hóa. Do team kiến trúc sư mình thiết kế

Thông tin biệt thự 1 tầng 4 phòng ngủ có sân vườn kiểu Nhật
Mẫu biệt thự 1 tầng 4 phòng ngủ vừa hoàn thành hồ sơ tháng 1 năm ngoái. Bàn giao qua ngày 6/2 khởi công của gia đình anh Mạnh 160m2. Bản vẽ nhà vườn 1 tầng 4 phòng ngủ 1 phòng thờ. Kiểu mái Nhật xây trên đất chiều ngang 15m dài sâu 30m. Trong đó phương án thiết kế nhà cấp 4 nông thôn 4 phòng ngủ 1 phòng thờ. Bản vẽ kiến trúc 3 gian hiện đại phong cách hiện đại Nhật Bản
- Mẫu nhà đẹp 200m2 1 tầng mái thái chị Vân ở Dĩ An Bình Dương
- Mẫu nhà cấp 4 đẹp 200m2 theo phong cách biệt thự nhà vườn

Mặt bằng nhà vườn 1 tầng 4 phòng ngủ 1 phòng thờ anh Mạnh
Gian chính giữa mẫu nhà vườn 1 tầng 4 phòng ngủ nông thôn thiết kế có phòng khách và phòng thờ liên thông với nhau. 4 góc còn lại chia đều cho 4 phòng ngủ trong đó có 1 phòng ngủ master có vệ sinh khép kín. Theo yêu cầu chủ nhà anh Mạnh thường xuyên có chạp giỗ nên thiết kế nhà bếp rộng riêng ở phía sau vườn cho rộng rãi. Không gian còn lại thiết kế 1 nhà vệ sinh. Phòng khách và thờ rộng hơn 35m2.

Bản vẽ nhà vườn 1 tầng 4 phòng ngủ 14x12m
Kích thước xây dựng bản vẽ nhà vườn 1 tầng 4 phòng ngủ ngang 14m dài ra sau 12m gần như kiểu biệt thự hình vuông. Do đất rộng dài 37m nên phía trước mặt tiền cổng chỉnh đi vào để sân vườn rộng 12m. Phía chừa sân vườn và lối đi khu nhà bếp 6m. Diện tích sàn xây dựng mẫu nhà vườn 4 phòng ngủ ở Thái Bình 160m2. Bản vẽ thiết kế biệt thự nhà vườn trệt 160m2 có 4 phòng ngủ 1 phòng thờ như sau

Chi phí xây biệt thự 1 tầng đẹp 160m2 mái ngói
So với các mẫu biệt thự mái thái 1 tầng 4 phòng ngủ trước có mái xây tường thu hồi rồi sử dụng kèo mạ kẽm 48 ly 4 lợp ngói. Thì mẫu biệt thự 1 tầng đẹp diện tích 160m2. Phía trên mái thiết kế đổ bằng bê tông với 2 lớp sắt 10 rồi sử dụng vì kèo thép nhẹ lợp ngói. Sau này có thể nâng tầng 2 thành nhà 3 gian 2 tầng được. Việc còn lại là chỉ cần tháo ngói và kèo ra thôi mà không vỡ kết cấu hay hình khối

Chi phí xây nhà 1 tầng 4 phòng ngủ 1 phòng thờ anh Mạnh
Mẫu nhà 1 tầng 4 phòng ngủ anh Mạnh ở Thái Bình có chi phí xây dựng hoàn thiện khoảng 1.3 tỷ đến 1.4 tỷ hiện nay. Do nhân công địa phương Thái Bình năm ngoái khoảng 1.5 triệu/m2. Nhưng do kiến trúc có nhiều mái chi tiết hơi phức tạp nên chi phí nhân công nhận 1.5 triệu/m2 là vừa. Công ty cổ phần kiến trúc xây dựng Nhà Đẹp Mới mình. Cung cấp thêm bản vẽ thiết kế nhà vườn 1 tầng 4 phòng ngủ 14x12m để anh chị tham khảo

Bản vẽ biệt thự trệt sân vườn 4 phòng ngủ 1 phòng thờ
Bản vẽ biệt thự nhà vườn 4 phòng ngủ 1 phòng thờ có kiến trúc trong bản vẽ phía sau có gờ móc nước. Phần thi công móng áp dụng cho nền đất tự nhiên. Chân tường ốp đá bóc màu ghi. Mảng tường sơn màu kem trắng còn phần dưới mái sơn giả gỗ. Chân tường nhà biệt thự 1 tầng 160m2 sân vườn ốp đá rối.

Mẫu biệt thự vườn 1 tầng 4 phòng ngủ mái thái
Bản vẽ thiết kế biệt thự 1 tầng 4 phòng ngủ mái thái 200m2 gồm 4 phòng ngủ rộng thoáng hiện đại ở nông thôn. Do đất rộng thoải mái nên thoáng mát không gian mở. Mẫu biệt thự mái thái 1 tầng có sân vườn anh Hóa hấp dẫn đối với các gia đình có đông anh em con cháu ở mọi thời đại.
Tuy nhiên để có mẫu biệt thự 1 tầng 4 phòng ngủ kiến trúc độc đáo mới lạ. Hợp với phong cảnh hữu tình ở các vùng quê có đất bề ngang rộng 18m trở lên. Xung quanh nếu có cây xanh trống 4 phía thì chọn kiểu này. Khi thiết kế đòi hỏi người kiến trúc sư phải thật sự có những trải nghiệm tuổi thơ dữ dội. Gắn với các trò chơi dân gian truyền thống nếp NHÀ VIỆT XƯA. Hay có những tháng ngày kỷ niệm êm đềm bên hàng dừa xanh cao vút. Hay những buổi trưa hè chăn trâu, bắt bướm mới cảm nhận được nét thi vị khi thiết kế biệt thự vườn 1 tầng đẹp được.

Cảm hứng thiết kế biệt thự 1 tầng 4 phòng ngủ mái thái truyền thống
Là một người sinh ra và lớn lên trên mảnh đất đầy nắng cát và gió Lào. Một Vùng quê xứ Nghệ đến khi theo học ngành kiến trúc thiết kế và kỹ thuật. Trong tôi luôn đau đáu là làm sao tạo nên một kiến trúc biệt thự 1 tầng đẹp nhất có sân vườn, có hoa và lá, có bể cá

Hơn hết là tạo ra một tác phẩm kiến trúc biệt thự sân vườn 1 tầng 4 phòng ngủ mái thái ở nông thôn. Vừa mang đậm nét hiện đại của biệt thự 1 tầng phong cách châu âu vừa mang đậm nét Á Đông kiểu nhà Việt truyền thống mà có lẽ rằng từ bao đời nay. Cha ông ta đã kế thừa phát huy mà ngay cả khi đế quốc xâm chiếm rất muốn đồng hóa mà cũng không thể nào làm được điều đó.
Mô tả thêm về mẫu biệt thự sân vườn 1 tầng 4 phòng ngủ
Mẫu biệt thự sân vườn 1 tầng 4 phòng ngủ do KTS thiết kế cho gia đình anh Hóa lợp ngói. Bản vẽ kích thước xây 200m2 trên khu đất ruộng rộng thẳng cánh cò bay.. Sau bao năm công tác trong ngành quân đội. Đại tá đã về hưu và mong muốn trở lại nơi vùng đất ở quê mình sinh ra và lớn lên. Để sống một cuộc sống an nhàn ẩn dật một phần phụng hiếu người mẹ già. Vốn dĩ cũng đã chán cảnh đô thị ồn ào tấp nập và mong muốn trở về với cội nguồn nơi quê cha đất tổ.

Cách thiết kế nhà vườn 1 tầng 4 phòng ngủ 200m2
Đất của tôi thì rộng lắm chú cứ thoải mái thiết kế làm sao có không gian nghỉ ngơi. Cảnh quan như có bể cá, tiểu cảnh sân vườn thác nước vừa có không gian sinh hoạt nghỉ ngơi thoải mái. Cho bà cụ nay đã 78 tuổi và vợ chồng tôi, vợ chồng con trai. Và cháu nội tất cả phải có 4 phòng ngủ nhé. Vừa uống trà, anh Hóa vừa đăm chiêu nói pha pha chút giọng Thái Bình đặc trưng rằng

Hiện thực hóa mẫu biệt thự vườn 1 tầng mái thái truyền thống
Tôi đã tham khảo rất nhiều mẫu nhà cấp 4 có 4 phòng ngủ ở nông thôn. Của nhiều công ty rồi nhưng phải nói rằng: Các mẫu thiết kế biệt thự sân vườn 1 tầng mái thái của chú rất thanh thoát, độc đáo nó khác hoàn toàn. À anh chị có đất rộng ngang 10m sâu 25m trở lên. Thì chọn phong thủy xây nhà trệt mái thái 8×20 cũng có 1 phòng thờ và 4 phòng ngủ = 160m2 như hình

Nội thất mẫu nhà vườn một tầng bốn phòng ngủ – phòng khách
So với các mẫu nhà vườn 1 tầng đẹp hay mẫu biệt thự 1 tầng kiểu pháp của các công ty xây dựng khác. Tôi đã thật sự bị cuốn hút bởi các phong cách thiết kế của chú. Nhất là các mẫu nhà cấp 4 có gác lửng 4 phòng ngủ mái thái.. Vừa thấy giá thành thiết kế phù hợp và thi công xây dựng vừa phải. Phù hợp với thị hiếu và kinh tế của nhiều người dân ở nông thôn hiện nay.

Sở hữu sớm biệt thự cấp 4 có 4 phòng ngủ mái thái đẹp nhất
Thật ra, những lời nói “có cánh” của Anh Hoá với tôi không lấy làm ngạc nhiên lắm. Bởi sứ mệnh của KTS là phải luôn nổ lực sáng tạo nhằm đem đến các mẫu biệt thự 1 tầng kiểu pháp sân vườn đẹp nhất. Cao sang hơn nữa là những mẫu nhà biệt thự 1 tầng ở quê tiết kiệm cho dân. Vừa kế thừa những nét tinh túy hợp với cốt cách người Việt chúng ta. Cho dù mẫu biệt thự 1 tầng hiện đại đến đâu có phá cách. Hay biến tấu theo các mẫu biệt thự 1 tầng kiểu pháp tân cổ giao duyên. Thậm chí là biệt thự 1 tầng phong cách châu âu hiện đại 4 phòng ngủ khác như nhà anh Thái

Mặt bằng biệt thự vườn 1 tầng có 4 phòng ngủ 1 phòng thờ
Mặt bằng nhà anh Thái thiết kế trên đất rộng diện tích phủ bì xây 12x20m tính cả mái. Hình ảnh trên là 1 trong những mẫu nhà trệt hiện đại có hành lang và hiên rộng kết hợp tiểu cảnh sân vườn. Anh chị tham khảo bằng cách BẤM Ở ĐÂY mà xem hình thực tế. Có thêm hồ sơ mẫu nhà đẹp với các góc nhìn xung quang ở quê anh Thái như mặt bằng. Nếu đất bề ngang rộng chỉ 12m hay hơn

Tư vấn kiến trúc biệt thự 1 tầng 4 phòng ngủ hiện đại
Mẫu thiết kế biệt thự sân vườn mái thái 1 tầng 4 phòng ngủ 200m2 lợp ngói anh Mạnh dưới. Bản vẽ sẵn có diện tích thiết kế là 11x18m phủ bì. Kiểu nhà vườn đẹp bốn phòng ngủ này xây dựng ở chính giữa khu vườn. Do phần đất ruộng ở quê nên phần móng buộc phải đào sâu ép cọc. Nếu đất cát thì sử dụng móng băng chắc chắn nên kinh phí thi công trên 1.5 tỷ năm 2026. Nhà này hiện đã xây xong

Cách chọn xây biệt thự trệt 4 phòng ngủ nóc thái
Lý do thứ 2 tôi sẽ giải thích vì sao biệt thự trệt 4 phòng ngủ nóc thái lại có kinh phí trên một tỷ cao thế? Đó là diện tích thi công là 200m2 + mái thái lợp ngói.. Các vật tư trung bình khá trở lên thì kết cấu ngôi nhà mới chắc chắn và bền vững và đồ gỗ

Trong đó đáng chú ý do phần đất thấp so với mặt đường bên ngoài vì phần đất ruộng. Nên phần móng chúng tôi đôn lên cao 1m tạo cho mẫu biệt thự đẹp 1 tầng mái thái ngang 18m sâu 12m. Kiến trúc thông thoáng cao ráo hơn và tránh được khi trời mưa ngập úng quanh nhà.
Không gian nhà vườn 1 tầng 4 phòng ngủ góc view 2
Mặt bằng 2d thiết kế 1 tầng nhà biệt thự sân vườn có 4 phòng ngủ như sau

Phần chiều cao cốt sàn trệt nhà vườn 1 tầng 4 phòng ngủ 200m2 cao 4m quý vị nhé, và phần mái cao 3,2m. Nếu tính từ mặt bằng trong nhà lên đến nóc nhà mái thái đẹp này là cao hơn 7m. Phía từ ngoài cổng đi vào theo trục đường bê tông là tầng cấp gồm 5 bậc cao 75 phân.
Bản vẽ biệt thự vườn 1 tầng 4 phòng ngủ hiện đại
Bản vẽ biệt thự vườn tầng 4 phòng ngủ ngang 18m sâu 11m được thiết kế theo hướng Tốn Đông Nam. Khác với hướng chính Nam hiện tại của khu đất. Bởi vì nếu thiết kế biệt thự vườn 1 tầng mái thái 200m2 này theo hướng Nam tức là hướng Ly không tốt.
Bản vẽ kích thước biệt thự trệt 4 phòng ngủ 200m2
Nghĩa là theo cung Thiên Y về thực tế thì được nhưng vì cung Thiên Y thuộc sao Cự Môn. Dương Thổ mà hướng Ly là âm Hỏa không tốt cho cô con gái thứ 2 của anh Hóa. Nên tôi phải giải thích tư vấn khá chí tiết và phân tích kỹ thuyết phục anh. Riêng về bản vẽ mặt bằng mẫu biệt thự trệt 4 phòng ngủ 200m2 tôi thiết kế như sau

Bố trí không gian nhà biệt thự vườn 1 tầng 4 phòng ngủ mái thái
Bản vẽ biệt thự vườn 1 tầng 200m2 4 phòng ngủ chúng tôi thiết kế phòng thờ phía sau sát tường. Tọa ở vị trí trang trọng nhất của ngôi nhà trước có vách ngăn gỗ đặt ti vi cho phòng khách. Thiết kế 2 nội thất phòng ngủ cho vợ chồng anh Hoá. Phòng ngủ vợ chồng cậu con trai kiểu master có phòng tắm , phòng vệ sinh bàn vi tính làm đẹp khép kín lịch sự riêng tư. À.! Nếu đất anh chị ngang 10m đến 12m cần xây nhà hướng Tây Nam thì xây 8.5mx17m như mẫu nhà cấp 4 chữ L 4 phòng ngủ anh Toàn hình dưới đây

Mô tả không gian biệt thự mái thái 1 tầng 4 phòng ngủ anh Hóa
Một phòng ngủ cho bà và 1 phòng ngủ cho cháu nội đi học xa lâu lâu mới về và 1 phòng tắm wc chung cho cả tầng. Thiết kế bàn ăn và phòng bếp dãy bên phải cạnh cửa sổ. Nội thất trang trí nhà bằng gỗ lớn view ra hướng mặt tiền thông thoáng. Một bên có sảnh phụ lối đi ra vườn sau. Phía trước mặt tiền nhà tiền sảnh thiết kế rộng có thể bố trí 1 bàn đá hay bộ bàn ghế gỗ sa long. Khi ngồi ăn sáng uống cà phê điểm tâm vừa ngắm bình minh hướng Đông vừa ngắm đàn cá cây xanh tiểu cảnh ở phía trước. Xem thêm


Nếu bạn thích nhà anh KHƠI chữ L hướng Nam hay Đông Nam phong thủy. Không gian nhà mái thái hình chữ L có tiểu cảnh đẹp thì xem Ở BÀI VIẾT NÀY – Có rất nhiều góc cạnh xứng đáng để bạn chọn
Các mẫu nhà đẹp 1 tầng 4 phòng ngủ ở quê
Mẫu biệt thự nhà vườn cấp 4 4 phòng ngủ 1 phòng thờ anh Hóa và anh Mạnh anh Thái… Đặc biệt rất phù hợp với các vùng nông thôn ở nước ta. Mẫu nhà đẹp 1 tầng 4 phòng ngủ xây kế thừa các mẫu nhà cấp 4 đẹp ở quê. Nhưng thiết kế theo cảnh quan sân vườn xung quanh và đón hướng gió mát từ cánh đồng lúa. Cũng như hướng gió mát từ biển và tránh được nắng chiếu vào rất tươi mát suốt cả ngày.
Bản vẽ nhà biệt thự ở quê kiểu cổ điển châu âu mái Nhật 10x20m
Cần bản vẽ xây biệt thự ở quê phong cách cổ điển kích thước xây 10×20 phủa bì thì BẤM XEM HỒ SƠ nhà em Nhung như hình cũng có 4 phòng ngủ và 1 phòng thờ. Cần bản vẽ cad nhà này thì liên hệ

Mẫu biệt thự 1 tầng kiểu Nhật 300m2 rất rộng rãi anh Bình
Mời quý vị tham khảo mẫu nhà 1 tầng 4 phòng ngủ đẹp ở quê bàn giao rồi. Sàn diện tích 300m2 xây dựng của anh Bình vừa hoàn thành hồ sơ. Đã thi công bàn giao cuối năm. Có hình ảnh đại diện biệt thự trệt mái thái đẹp 4 phòng ngủ có hình ảnh thi công hoàn thiện thực tế


Hồ sơ thiết kế nhà cấp 4 nông thôn 4 phòng ngủ đẹp
Mẫu nhà cấp 4 nông thôn 4 phòng ngủ của anh Niềm thiết kế với diện tích 170m2 mái Lùn. Hồ sơ kỹ thật xây nhà ở quê thiết kế phòng thờ riêng. Khác biệt chút so với các mẫu nhà 4 phòng ngủ mái Nhật 3 gian. Thì kiến trúc nhà vườn 1 tầng ở nông thôn mái thái lợp ngói đẹp. Có phòng khách liên thông ở gian giữa chính diện từ sảnh đi vào khá khác biệt.

Bản vẽ nhà vườn 1 tầng mái Thái hiện đại lợp ngói đỏ
Hình ảnh nhà mái thái 4 phòng ngủ đẹp có chi phí xây dựng năm 2026 khoảng 1.8 tỷ. Với hình ảnh 3D nhà đẹp 1 tầng như sau. Anh chị kích vào đường dẫn để xem bản vẽ chi tiết


Mẫu nhà cấp 4 có 4 phòng ngủ ngang 8.5m mái Thái
Mẫu nhà cấp 4 4 phòng ngủ thứ 2 là của vợ chồng thầy Hiệu trưởng Hồng và cô Tuyết. Bàn giao xây xong ở Long Thành mà người dân nơi đây không xa lạ. Mẫu nhà vườn cấp 4 có 4 phòng ngủ 1 phòng thờ thiết kế cho đất chiều ngang 8m5 đến 10m. Có 1 mặt tiền chứ không rộng hơn và hành lang cho thoáng và mái thoát nước 2 bên


Bản vẽ nhà cấp 4 mái thái đơn giản tiết kiệm mà có 4 phòng ngủ
Ngoài ra nếu chi phí chỉ có 1 tỷ thôi mà cần 1 phòng thờ 4 phòng ngủ. Mình là Bản đẹp trai mình có vẽ cho vợ chồng anh Thụ năm ngoái mẫu nhà chữ L ngang 9m cửa gỗ xịn móng cao chắc chắn. Đừng có vội vàng mà hãy liên hệ để có bản vẽ và mua vật tư kêu nhân công xây cho rẻ năm 2026 tới


Mẫu nhà 4 phòng ngủ kiểu biệt thự 1 tầng mái Nhật
Mẫu nhà 4 phòng ngủ đẹp phong cách châu âu hiện đại phù hợp với các lô đất rộng ở nông thôn miền Bắc. Hồ sơ kiến trúc biệt thự nhà vườn 1 tầng 4 phòng ngủ kiến trúc 4 gian do KTS Tư văn phòng chi nhánh tại Hà Nội phụ trách. Hình ảnh biệt thự 1 tầng mái đổ bê tông dán ngòi như sau


Mẫu nhà vườn 1 tầng 4 phòng ngủ chắc là đã thi công xong rồi nến cần hồ sơ anh chị tham khảo đường dẫn này: https://thietkenhadepmoi.com/biet-thu-nha-vuon-1-tang-4-phong-ngu.html
Những kiểu nhà 1 tầng 4 phòng ngủ có sân vườn
Từ khi thành lập từ năm 2011 đến nay công ty thiết kế xây dựng Nhà Đẹp Mới đã chuyển sang cổ phần. Có hơn 100 mẫu nhà 1 tầng 4 phòng ngủ đẹp cao cấp. Như biệt thự 1 tầng có gác lửng sân vườn ở quê diện tích 180m2 có tầng lửng 4 phòng ngủ anh Thị này. Cần bản vẽ thi công nhà gác lửng đẹp mái Thái 4 phòng ngủ 180m2 này thì xem thêm Ở BÀI VIẾT NÀY mà chọn thêm cho năm 2026. Nếu thích mái Thái

Bản vẽ nhà lầu có 4 phòng ngủ 12x8m có phòng thờ ở trên
Các mẫu villa vườn 400m2 4 đến 5 phòng ngủ hay các mẫu nhà cấp 4 có gác lửng 4 phòng ngủ của chị Ngọc 5x20m hay 8 hồ sơ bản vẽ nhà vườn 1 tầng 4 phòng ngủ 1 phòng thờ diện tích lớn nhỏ khác nhau phù hợp với diện tích như sau

Biệt thự sân vườn anh Vĩnh mái Nhật có 1 phòng thờ 4 phòng ngủ
Mẫu biệt thự vườn 1 tầng mái Nhật đẹp 4 phòng ngủ 1 phòng thờ nếu tính cả mái đua xung quanh. Thì diện tích 300m2 xây dựng nghĩa là tính theo giọt ranh. Cần bản vẽ như hình dưới thì liên hệ





Bản vẽ nhà gác lửng cấp 4 có 4 phòng ngủ em Tiệm
Mẫu nhà gác lửng 4 phòng ngủ thiết kế và xây hết 1.7 tỷ. Phía ngoài có gara ô tô ở dưới hai phòng ngủ còn trên hai phòng ngủ một phòng thờ. Có gara. Nhà này xây xong năm ngoái kiểu tân cổ điển. Sử dụng cầu thang, tủ bếp, cừa gỗ cao cấp nên tốn kém hơn


Mẫu nhà mái Nhật 3 gian có 4 phòng ngủ hiện đại ở quê
Đây là bản vẽ nhà mái Nhật 1 tầng 4 phòng ngủ ở nông thôn. Móng thiết kế cao ráo bên phải có cửa 2 cánh lối vào phòng ăn. Còn gian giữa là phòng khách liên thông với phòng thờ. Gửi thêm mặt tiền nhà vườn hiện đại ngang 16m anh chị tham khảo


Mẫu nhà trệt mái bắng Ú có 4 phòng ngủ ngang 10m
Còn đây là mẫu nhà mái bánh Ú ngang 10m bên hông có sảnh đệm thiết kế cho gia đình anh Tài. Cần bản vẽ nhà này đã xây xong alo mình. Mình gửi hình thực tế cho xem



Kết nối xây nhà đẹp 1 tầng 3 4 phòng ngủ tại Việt Nam
Trên đây là các mẫu nhà 1 tầng 4 phòng ngủ thiết kế đều có phong cách kiến trúc biệt thự 1 tầng đẹp mái ngói khác nhau. Thích ứng cho các khu đất nhà vườn 1 mặt tiền ở đường nông thôn hay đất rộng ở quê khác nhau.


Bản vẽ biệt thự nhà vườn 5 gian mái Nhật có 4 phòng ngủ
Anh chị bấm ở đường dẫn này nếu cần xây nhà vườn 5 gian 4 phòng ngủ đẹp 2026 – 2027 tới. Với kiến trúc nhà biệt thự sân vườn 200m2 mái Nhật ở quê nông thôn như hình

Mẫu biệt thự vườn 1 tầng 4 phòng ngủ kiểu Pháp
Ngoài ra còn có hơn 500 mẫu nhà 1 tầng 4 phòng ngủ đẹp kiểu biệt thự nhà vườn cấp 4 diện tích 150m2 180m2 mái thái. Hay bản vẽ 200m2 250m2 đến 400m2 cũng có. Như bản vẽ biệt thự nhà vườn kiểu Pháp châu âu diện tích 200m2. Kiểu 5 gian 4 phòng ngủ 1 phòng thờ. Do ê kíp KTS công ty mình vừa thiết kế cho gia đình chú Huy. Nghỉ hưu theo nghị định 178 mới nhất này. Anh chị xem đầy đủ thông tin Ở TẠI ĐÂY mà chọn thêm biệt thự vườn 1 tầng 4 phòng ngủ mới

Mặt bằng nhà 8x20m 4 phòng ngủ 1 phòng thờ 2026
Gửi thêm anh chị 1 số mặt bằng sơ đồ bố trí thiết kế nhà vườn đẹp 4 phòng ngủ để tham khảo thêm mà chọn. Cho phù hợp với nhu cầu và mục đích sử dụng cách sinh hoạt của gia đình mình. Thích hình nào thì liên hệ




Các kiểu nhà hiện đại 1 tầng bốn phòng ngủ một phòng thờ khác
Ngoài ra còn có các kiểu nhà khác như:







Mẫu nhà vườn kiểu Tam Hợp Viện hình chữ U đẹp 4 phòng ngủ 1 phòng thờ
Ngoài ra còn có những mẫu nhà hình chữ U kiến trúc Tam Hợp Viện đẹp 1 tầng 4 phòng ngủ 1 phòng thờ. Đã thiết kế xây xong khác anh chị tham khảo ở Bài Viết Này mà chọn thêm cho năm 2026 nếu cần xây nhà vườn nghỉ dưỡng kiểu sinh Thái phong thuỷ

Liên hệ địa chỉ chi nhánh văn phòng kiến trúc sư ở Hà Nội – Sài Gòn và Đà Nẵng thành phố Biên Hòa. Có 9 chi nhánh tư vấn xây nhà trọn gói tin cậy nhất hôm nay. Anh chị liên hệ với sếp Bản phó tổng giám đốc công ty mình 0975 945 433. Để gửi thêm mẫu nhà đẹp mới nhất phù hợp với các thế đất và phong thuỷ tuổi. Hay thiết kế nhà trệt có sân vườn 4 phòng ngủ khác. Mỗi khi áp dụng model phong cách mới đều tối ưu phong thuỷ và theo nhu cầu kinh phí dự trù rộng hẹp khác nhau. Trân trọng cảm ơn.1









































Nếu mình chỉ lợp ngói sau đo đóng thạch anh có được ko thời gian liệu mái ngói có đảm bảo ko bị thấm nước làm hư thạch anh ko kts
Mình thấy mẫu nhà này rất thích mình du định xây y như thế cho mình hỏi mái nhà là có đổ bê tông ko hay chỉ lợp ngói rồi đóng thạch anh vậy mà kinh phi lên tới 1,5 tỷ thế
Chào Kiến trúc sư,
Em muốn xây một ngôi nhà diện tích 11×13(13 mặt tiền) gồm 1 gian thờ, 1 phòng khách, 1 phòng bếp, 1 WC chung, 1 phòng làm việc, 3 phòng ngủ và 1 gara.
Mong kiến trúc sư tư vấn giúp!
Chào Kiến trúc sư,
Em muốn xây một ngôi nhà diện tích 11×13(13 mặt tiền) gồm 1 gian thờ, 1 phòng khách, 1 phòng bếp, 1 WC chung, 1 phòng làm việc và 3 phòng ngủ.
Mong kiến trúc sư tư vấn giúp!
Tháng 8 (ÂL) này tôi xây nhà, tôi muốn mua đúng bản thiết kế này, tôi vừa gọi cho Mr Bản nhưng ko thấy nghe máy, xin vui lòng gọi lại cho tôi nhé..!
Dear Mr Triệu – Kinh phí 800 triệu bạn có thể xây nhà biệt thự sân vườn khoảng 160m2 4 phòng ngủ mái ngói tân cổ điển đẹp xung quanh có trồng cây xanh, tiểu cảnh 2 tiền sảnh và lối đi thoáng mát hiện đại. Bạn vui lòng gọi cho chúng tôi để được tư vấn phác thảo phương án thiết kế xây nhà và dự toán kinh phí đầy đủ hay có thể để lại số điện thoại để KTS chúng tôi liên hệ tư vấn giúp bạn cũng được. Trân trọng!
Xin chào KTS!
Gia đình tôi có mảnh đất 15×25, tôi muốn xây xây biệt thự vườn mái thái có 4 phòng ngủ, 1 khách và thờ, bếp và WC chung, với kinh phí 800 triệu. Tôi mong muốn nhận được tư vấn từ KTS. Tôi sinh 1981, vợ sinh 1990. Xin cảm ơn!
Cho e hỏi tổng ngôi nhà này khoảng bn t ạ?
Chào KTS! mình có mảnh đất rộng 20x28m,hướng Tây nam xin tư vấn xây nhà vườn.
Xin cam ơn.
Dear mr Hải – mẫu biệt thự trệt mái ngói trên có diện tích xây dựng 220m2 mái thái rộng thoáng nằm trong khu đất vườn rộng kinh phí hoàn thiện 1,5 tỷ, nếu bạn có kinh phí 800 triệu nhu cầu xây 5 phòng ngủ thì làm nhà vườn 1 tầng 200m2 mái lợp tôn giả ngói trần thạch cao chống nóng cách nhiệt giả biệt thự vườn mái thái, khi nào có nhu cầu xây nhà thì a lo cho chúng tôi để được tư vấn thiết kế thi công. Thân
chào anh. mẫu nhà đẹp này vợ chồng em rất thích. em dự định 2017 xây nhà . chồng em sinh năm 1978, em sinh năm 1991, diện tích 200m.kinh phí dự kiến khoảng 800trieu.mong a có thể tư vấn giúp em? sdt 0985091486
Chào anh Điền , anh khi nào xây nhà ạ.? Hay chỉ tham khảo thôi , nếu anh có nhu cầu thực sự vui lòng cung cấp một số thông tin như tuổi, tổng thể diện tích khu đất , kinh phí dự trù.. và số điện thoại để chúng tôi tư vấn thiết kế thi công nhà đẹp cho bạn nhé
Xin chào! mình rất thích xây nhà 1 tầng gồm có: 4 phòng ngủ,1 khách,1 thờ, 1 ăn, 1wc. mặt tiền nhà mình 12m,sâu thì thoải mái.mong kts tư vấn!
Địa thế đất nhà tôi rất phù hop cho xây dựng những mẫu nhà này, đầu 2017 toi sẽ khởi công, rất mong nhận được tư vấn thiết kế xây dựng của quý công ty. Nếu có thể quý côg ty vui lòng liên hê theo sdt 0962 722 886
Em du dinh nam 2016 xay nha. Va mau nha nay rat phu hop voi dia the dat nha em. Cong ty anh co the lam tu van va xay dung cho e dc ko? SDT cua e la 01693688345. Anh lien lac cho em voi nhe. Em o Hoa Binh. Rat mong duoc su hop tac cua cty. Xin cam on
Mẫu thiết kế này rất đẹp, bố cục logic, tiện lợi trong sử dụng. Tuy nhiên nếu xét về mặt phong thủy thì thiết kế này có chút chưa hoàn hảo lắm. Theo như trình bày của kiến trúc sư thì nhà này quay hướng đông nên có thể tạm hiểu là gia chủ thuộc đông tứ mệnh. Các hướng tốt là đông, đông nam, nam, bắc. Tại chính nam (phúc đức) lại để cái toilet như vậy sẽ có phần ảnh hưởng đến phong thủy ngôi nhà.Theo ý chủ quan của tôi.
Tôi có mảnh đất 24x11m ở Quảng Ninh muốn xây 1 ngôi nhà thế này, với mặt tiền 13,1m x8,2m kts tư vấn giúp tôi với.
Hiện tại toi đang co ngoi nhà 2 tầng, muốn tận dụng một số cửa chính và cửa sổ để làm ngoi nhà 5 phingf ngủ, 1 phòng khach chính, một sảnh tiếp khách, có phòng thò nhỏ, có noi để ô to. 5 phòng ngủ có 3 phòng có công trình vệ sinh khép kín. Công ty có mẫu nào không tu vấn giúp
Mình đang dự định xây nhà ket họp làm văn phòng cong ty. Thấy mẫu nhà này phù hợp và thích.
Vui long tu van và cho xin cuộc hẹn gặp
Mr Vinh 0979797666
e muốn làm nhà mình giống này đặt nhà e là 13x9m có a tư vấn giúp e với